Property Media
Popup Video
property gallery
Property mainbar sidebar
Property Mainbar
Equinox 2 - Ground Floor/70 Kent Street, Deakin
Contact Agent
Property Mobile Panel
For Lease
Property Details
Property Type
Medical/Consulting
Offices
Floor 155m² - 158m²
Ground Floor Tenancy Available in Contemporary Office Development
Highlights
Equinox 2, West Deakin
Positioned within the highly regarded Equinox Business Park, this ground floor opportunity at Equinox 2, 70 Kent Street, Deakin, offers businesses a contemporary and flexible workspace in one of Canberras premier commercial precincts.
Equinox 2 is one of four modern office buildings within the business park and enjoys a prime, high exposure position. Tenants benefit from excellent connectivity to the Woden Town Centre, Canberras CBD, and surrounding health and professional services. The precinct also provides outstanding onsite amenities, including convenient basement and surface parking and a quality cafe and bakery only steps away.
This location presents an ideal blend of convenience, amenity, and professional presence perfect for organisations seeking a high quality and functional commercial environment.
Available Areas
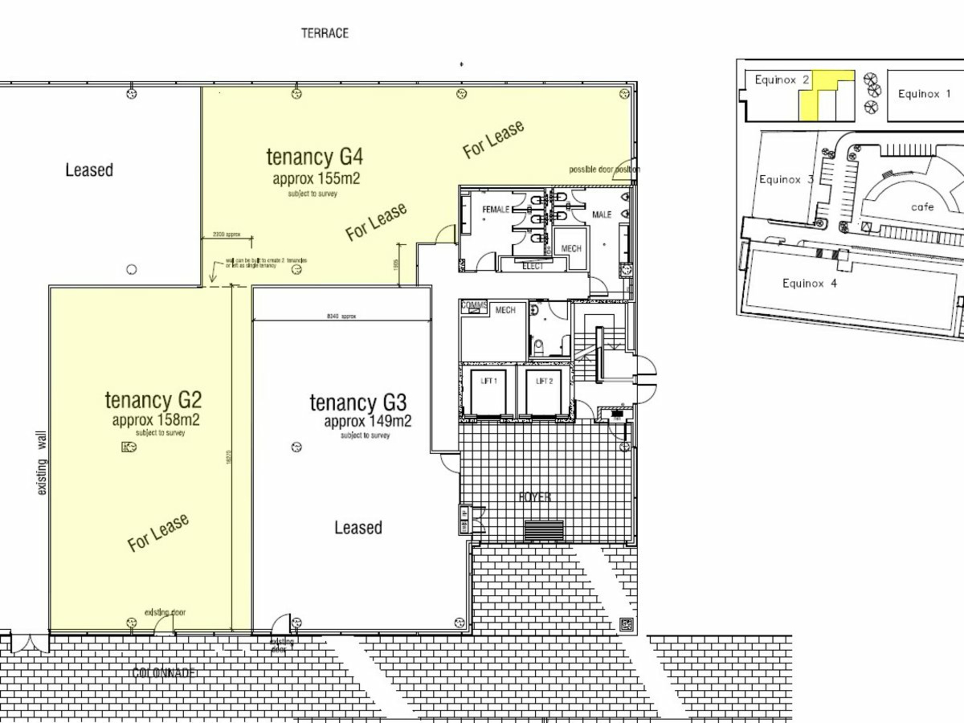
The available space totals approximately 315 sqm and can be leased as a single tenancy or subdivided into:
Ground floor tenancy G2: 158 sqm
Ground floor tenancy G4: 155 sqm.
Flexible configurations make these tenancies suitable for a wide range of professional, medical, and office users.
Location Highlights
Deakin is widely regarded as Canberras premier health and professional hub. Its proximity to Calvary John James Hospital, the National Capital Private Hospital, and numerous medical specialists positions this property at the centre of a thriving, high demand precinct. The area is well serviced, highly connected, and attractive to professionals and clients alike.
For further information or to arrange an inspection, please contact Greg Lyons – 0439 338 883 or Lorna Stander - 0431 750 185.
Property Brochures
- EER 0
- Property ID 47KHXW
property map
Property Sidebar
For Lease
Property Details
Property Type
Medical/Consulting
Offices
Floor 155m² - 158m²
Sidebar Navigation
How can we help?
listing banner
Thank you for your enquiry. We will be in touch shortly.
