156 Main Street, Lithgow NSW

Property Media

Property mainbar sidebar

Property Mainbar

156 Main Street, Lithgow

Contact Agent

Floor Area 396m²
Land Area 1230m²
10

Property Mobile Panel

For Sale

Property Details

Property Type Retail

Land 1230m²

Floor 396m²

Parking 10

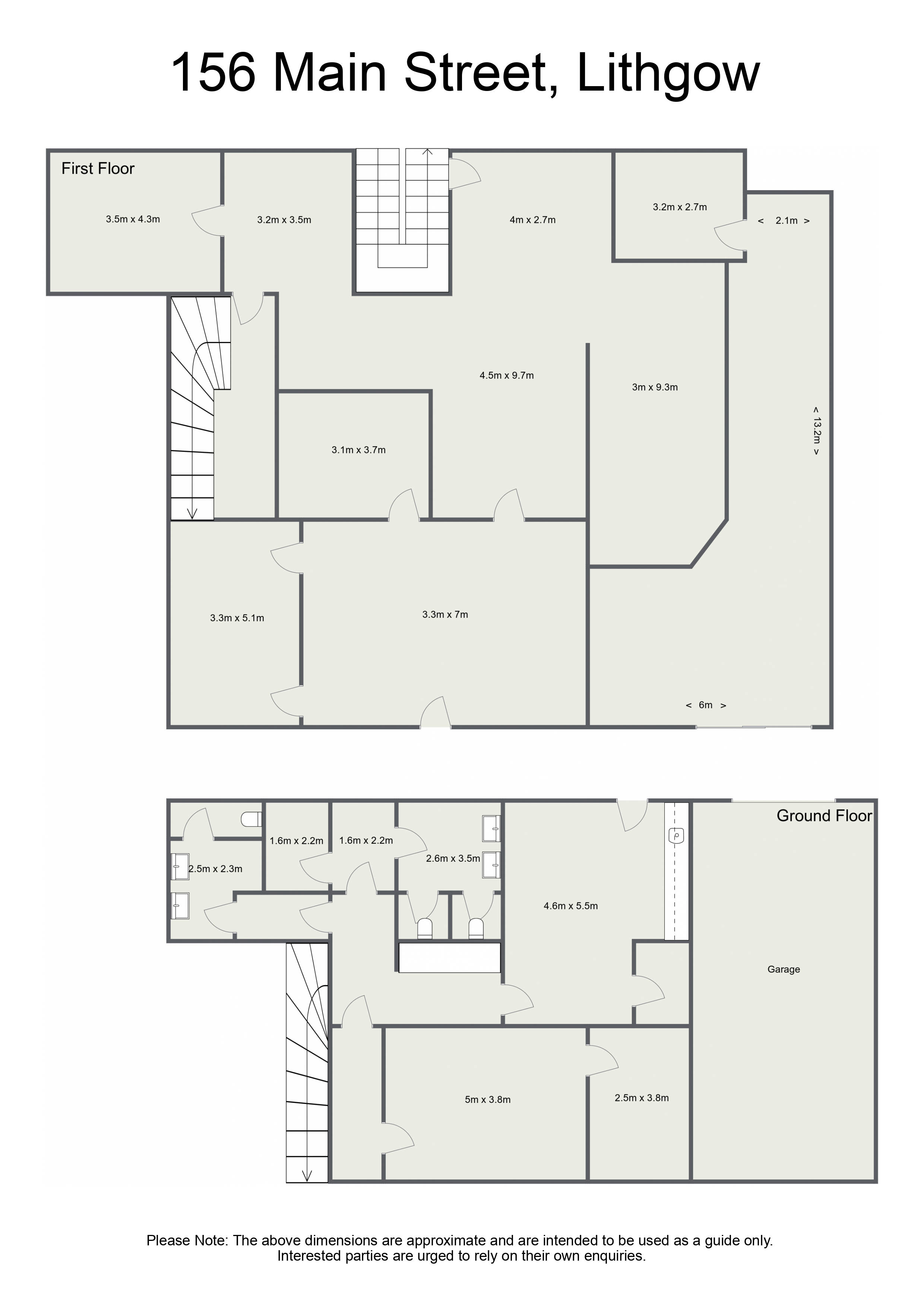
Iconic Landmark Building

One of Lithgow's most iconic CBD landmark buildings, the former National Australia Bank building offers a fantastic opportunity and broad scope for a variety of alternate uses including professional rooms, offices, hospitality and retail.

A unique character building with a high caliber of construction and architecture. The 3 storey plan consists of ground floor business premises with double Main Street pedestrian entry; lower ground floor storage, archive room, amenities, basement and double garage; First floor 2-bedroom residential apartment with separate access.
The original timber bank teller counter and separate service counter still remain as well as high ornate plaster ceilings and original front entry and internal doors. There is also a new ducted air conditioning system, auto doors , security system, secure strong room and 2 former bank safes.

The property has the advantage of a large fenced yard space suitable for plenty of off street parking, with side laneway access and rear boundary facing a council carpark. The Eastern side boundary fronts a pedestrian walkway to Main Street and the street frontage is wide 24 metres.

The 2 bedroom apartment is currently leased fully furnished at $400 per week and the business premises is being sold with vacant possession.

Please call for a full IM and contract of sale.

• Mt Victoria Pass is temporarily closed, however Lithgow is still accessible from Sydney and the Blue Mountains via the Darling Causeway diversion from the Great Western Highway and alternatively the Bells Line of Road.
Allow an extra 20 minutes travel time.

Property Brochures

  • Property ID 1H2PF9X

property map

Property Sidebar

For Sale

Property Details

Property Type Retail

Land 1230m²

Floor 396m²

Parking 10

Sidebar Navigation

How can we help?

listing banner

Ask a question

Please send me more information on...

listing item

listing item

listing item

listing item