Level 1/407-409 King Street, Newtown NSW

Property Media

Property mainbar sidebar

Property Mainbar

Level 1/407-409 King Street, Newtown

LEASED

Floor Area 360m²

Property Mobile Panel

For Lease

Property Details

Property Type
Offices

Retail

Other

Floor 360m²

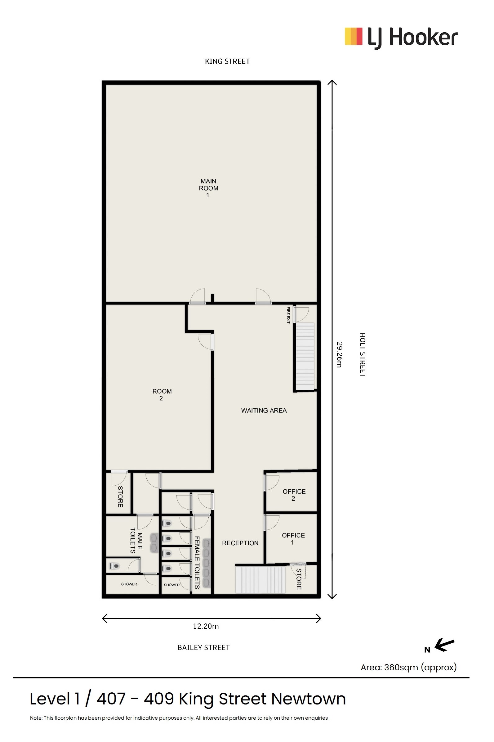
Rare 360sqm Offering

LJ Hooker Rockdale is pleased to offer Level 1, 407-409 King Street Newtown.

This versatile space provides a unique offering within a prime retail location situated on the corner of King Street and Holt Street.

- 360sqm• space situated on the first floor of a renovated building
- Private entry from Holt Lane
- Renovated and bright interiors with polished concrete floors, high ceilings and natural light
- Separate male and female amenities
- Two large open rooms with multiple additional store rooms/offices.
- 270 metres to Newtown Train Station

For further details or to arrange an on-site inspection please contact Frank Touma from LJ Hooker Rockdale on 0402 061 276 or 9597 6144.

•approximate area

Property Brochures

  • Property ID 4CPHS3

property map

Property Sidebar

For Lease

Property Details

Property Type
Offices

Retail

Other

Floor 360m²

Sidebar Navigation

How can we help?

listing banner

Ask a question

Please send me more information on...

listing item

listing item

listing item

listing item