Suite 2.1/69A Central Coast Highway, West Gosford NSW

Property Media

Property mainbar sidebar

Property Mainbar

Suite 2.1/69A Central Coast Highway, West Gosford

$175,000 net + GST

Floor Area 466m²
Land Area 466m²

Property Mobile Panel

For Lease

Property Details

Property Type Offices

Land 466m²

Floor 466m²

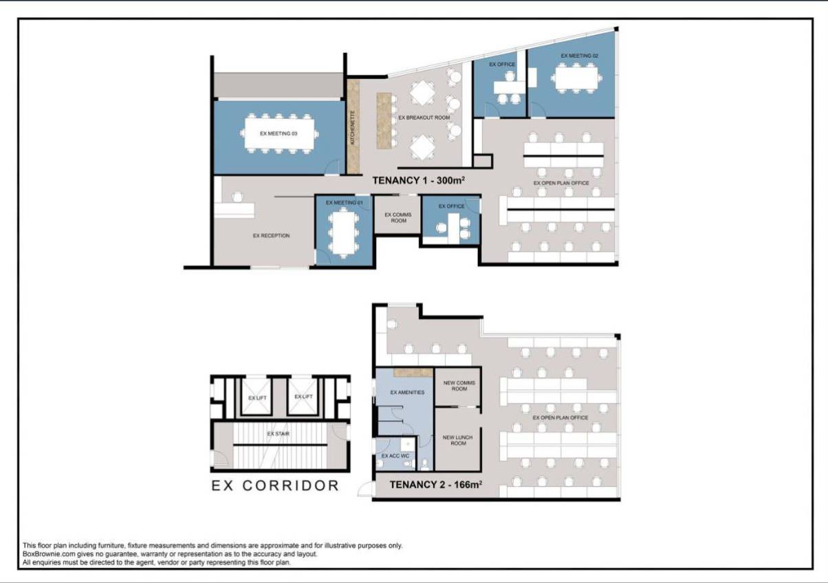
Quality offices at Riverside Park!

Located at Riverside Park Precinct in the Reliance building at West Gosford is this well-appointed office premises NOW available for lease!

With the current fit out included featuring a modern reception & administration area, multiple office suites, a large boardroom, staff room & amenities.

The well thought out design includes open plan areas, loads of natural light, well-appointed office suites/consult rooms with panoramic views of the surrounding landscape. Quality floor coverings, LED lighting & IT cable points in place, it's all ready for you to move in!

With its sought-after convenient location in the hub of West Gosford's Riverside Park surrounded by National retailers & high-profile local businesses, this premises is sure to be popular.

Features include:
• High quality fit out in place
• Private staff lunchroom / break out area
• NBN Active
• Loads of natural light
• Available from $50,000 per annum + outgoings for tenancy 2
• Ample staff parking available at additional cost
• On-site Cafe perfect for staff lunches and meetings

Tenancy 1: 300m2•
Tenancy 2: 166m2•
Total area available: 466 m2•

•Approximate

For more information or to arrange an inspection, please call Ben Purdue 0450 719 600 or Josh Nercessian 0468 880 546 today!

Property Brochures

  • Property ID 109HXT

property map

Property Sidebar

For Lease

Property Details

Property Type Offices

Land 466m²

Floor 466m²

Sidebar Navigation

How can we help?

listing banner

Ask a question

Please send me more information on...

listing item

listing item

listing item

listing item