Property Media
Popup Video
property gallery
Property mainbar sidebar
Property Mainbar
54 Clifford Street, Torrensville
Sold For $724,000
Property Mobile Panel
For Sale
Property Details
Property Type House
CONTRACTED AT AUCTION
Rare opportunity in the heart of Torrensville
Why you'll love it
Situated on a popular street in the centre of Torrensville, this is an excellent opportunity to purchase a large home for less and add your own stamp in the coming years.
This c1953 home features and art deco frontage and a collection of character charm throughout. For those looking to add value there are plenty of opportunities to put your own stamp on the home, particularly in the enormous backyard which offers ample options to extend the home (stcc).
Located within walking distance to excellent facilities such as the Brickworks, Torrensville Primary School, Thebarton Senior College along with the cafes and restaurants of Henley Beach Road it's hard to want for anything living in the inner west. Plus, you will be an arm's reach from the CBD and less than 7km from Adelaide's pristine beaches.
Key Features
- Potential to extend or renovate to add value (stcc)
- Charming kitchen in the centre of the home
- Flexible floorplan offering additional living space or bedroom
- Split system R/C air conditioner in the main bedroom
- Sleep out at rear which could be utilised as an additional bedroom, study, living space or dining room
- Central bathroom with separate shower and bath
- Separate toilet towards to rear of the property
- Separate laundry with ample space
- Spacious garden shed for additional storage
- Extensive backyard offering potential to extend (stcc)
The Figures:
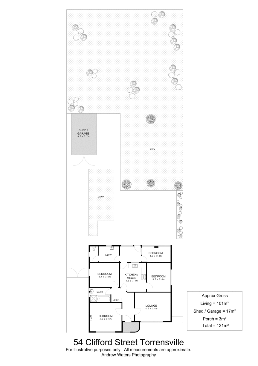
Land Size: 697sqm (approx.)
Dimensions: 15.2m (approx.) frontage x 45.7m (approx.) depth
Zoning: Residential 28 - Torrensville Character
All information provided including, but not limited to, the property's land size, floorplan, floor size, building age and general property description has been obtained from sources deemed reliable. However, the agent and the vendor cannot guarantee the information is accurate and the agent, and the vendor, does not accept any liability for any errors or oversights. Interested parties should make their own independent enquiries and obtain their own advice regarding the property. Should this property be scheduled for Auction, the Vendor's Statement will be available for perusal by members of the public 3 business days prior to the Auction at the offices of LJ Hooker Mile End at 206a Henley Beach Road, Torrensville and for 30 minutes prior to the Auction at the place which the Auction will be conducted. RLA 242629
•• LJ Hooker Mile End & Projects Adelaide have implemented preventative health measures for property inspections and auction activities. If you are unwell or have recently travelled interstate or overseas, please contact our Property Consultants to discuss alternate ways to view this property.••
Features
- Air Conditioning
- Close to Schools
- Close to Shops
- Close to Transport
Property Brochures
- RLA 242629
- Property ID K5PHDM
property map
Property Sidebar
For Sale
Property Details
Property Type House
Sidebar Navigation
How can we help?
Thank you for your enquiry. We will be in touch shortly.