57 Ross Smith Crescent, Scullin ACT

Property Media

Property mainbar sidebar

Property Mainbar

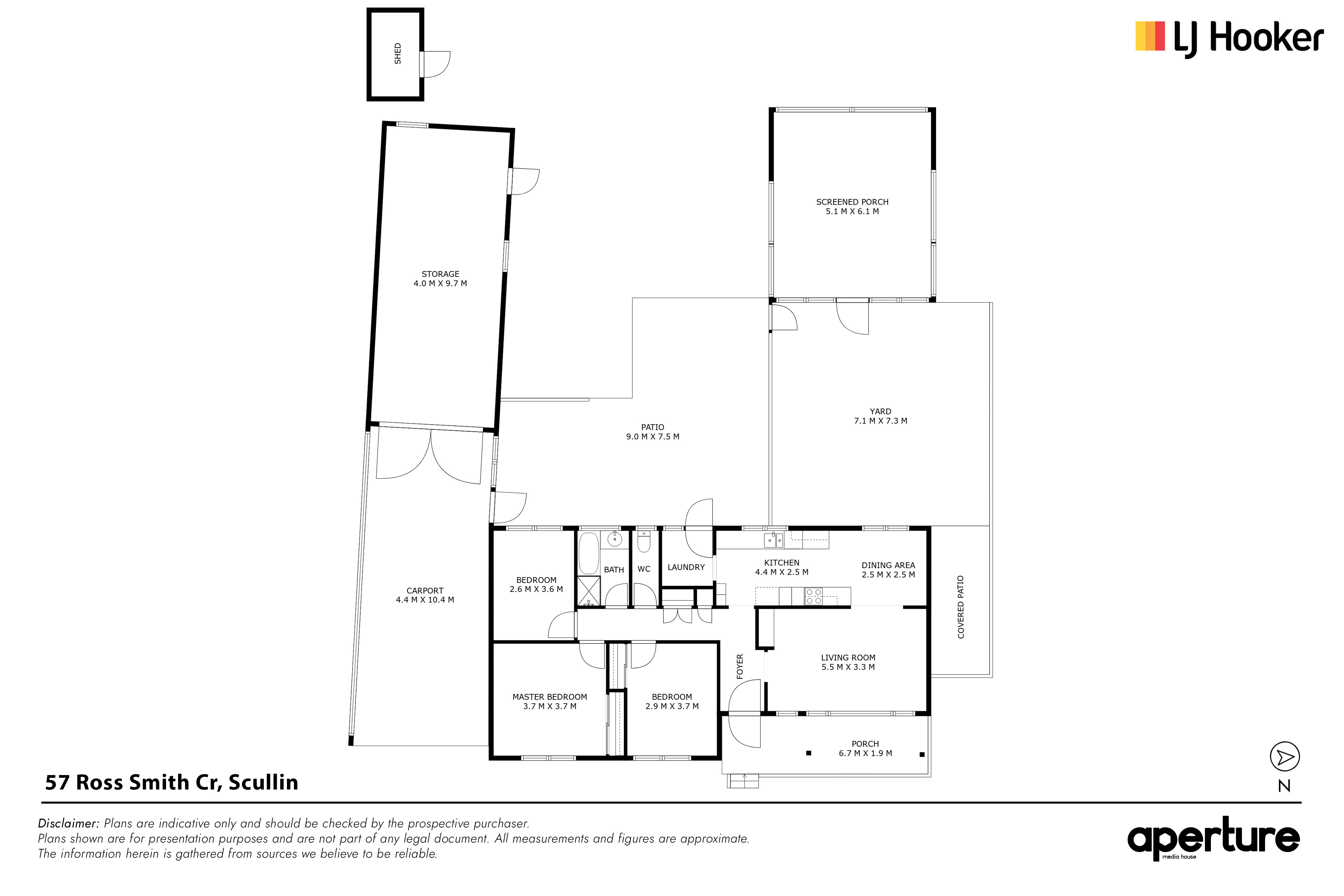
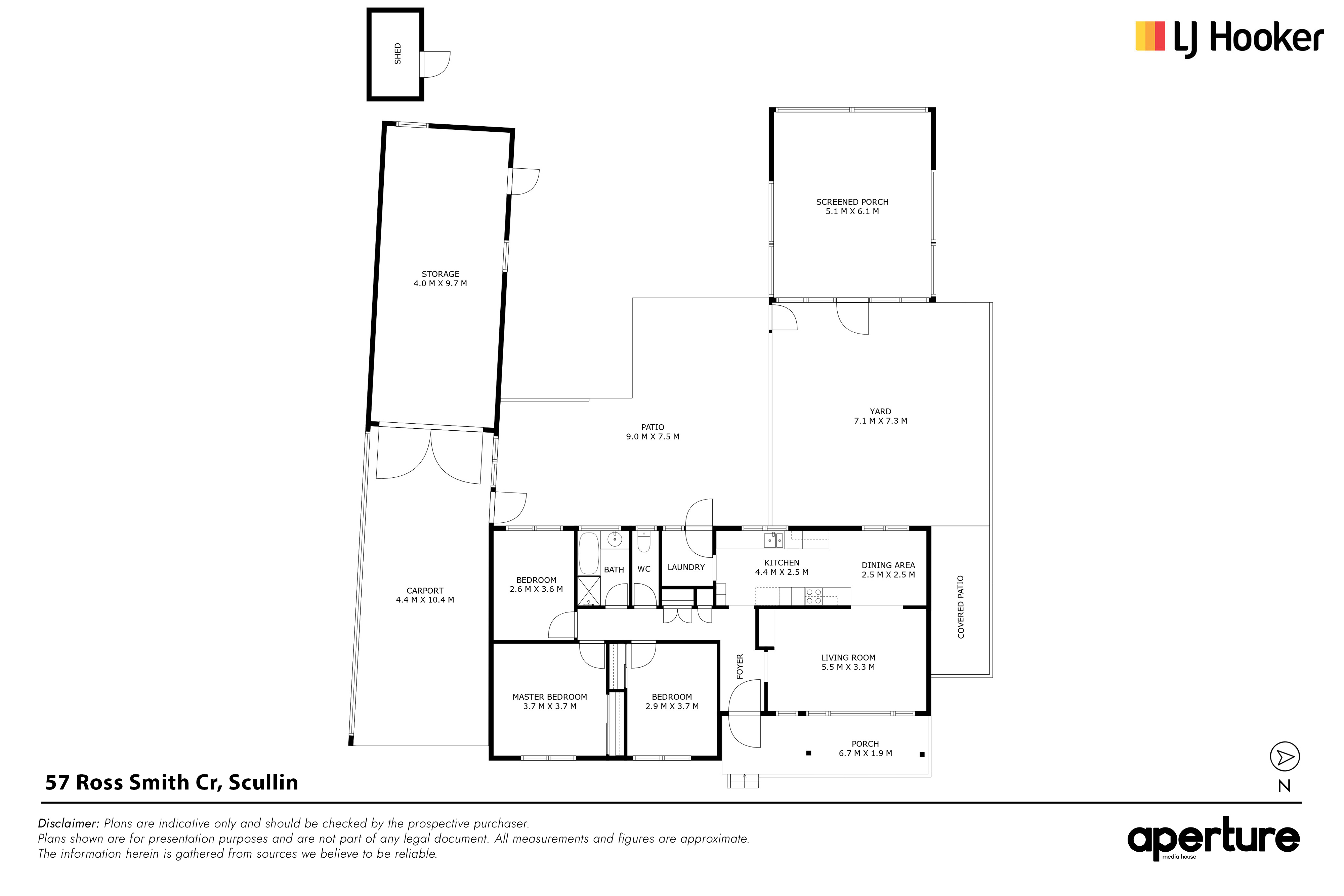
57 Ross Smith Crescent, Scullin

$630 Per Week

3
1
4

Property Mobile Panel

For Rent

Inspection Details

Property Details

Property Type House

Lease type Residential

Bond $2,520

Available Date Tue 28 April

Your Next Home Awaits

Positioned in an established street, this well presented home offers a practical layout, light filled interiors and a generous outdoor area.

The main living space is bright and welcoming, with large windows allowing for plenty of natural light. The layout flows through to the kitchen and adjoining dining area, creating a functional space for everyday living.

The kitchen provides bench space, electric cooking and plenty of cabinetry, with easy access to the dining area.

The bedrooms are well sized and two include built-in storage, serviced by a central bathroom with separate bath and shower.

Outside, the property features a spacious backyard with established greenery, along with a covered carport and drive through access to a large rear structure suitable for vehicle parking or storage.

Features include:
• Spacious living area
• Ducted heating and cooling
• Electric cooking
• Built-in robes to 2x bedrooms
• Covered carport with drive through access
• Large rear structure suitable for parking, workshop or storage
• Generous backyard

Located close to local shops, schools and public transport, this home offers comfortable and practical living in a convenient location.

12 Month Lease

The property complies with the minimum ceiling insulation standard.

EER Unknown

TO INSPECT THIS PROPERTY
1.You can Register to join an existing inspection or Register to be notified when inspection times are available.
2.Click on the BOOK INSPECTION button and choose your inspection time.
3.If this listing does not have the BOOK INSPECTION button, please go to Belconnen.ljhooker.com.au to Register.
4.If you do not Register, we cannot notify you of any time changes, cancellations, or future inspection times.

PETS: Please be aware that at all stages of your tenancy this property requires consent to be sought from the property owner for the keeping of any pets at the property. Consent must be provided before any pets are on the property.

Disclaimer
Information contained herein is gathered from external sources we consider to be reliable.
Whilst all care has been taken regarding all information compiled for this rental advertisement LJ Hooker Belconnen does not give any guarantee or warranty about the information provided and does not accept responsibility and disclaims all liabilities as to any errors or inaccuracies contained herein. We advise prospective tenants to rely on their own investigations and in-person inspections to ensure this property meets their individual needs and circumstances.

Property Brochures

  • Property ID HNZUMF8H

property map

Property Sidebar

For Rent

Inspection Details

Property Details

Property Type House

Lease type Residential

Bond $2,520

Available Date Tue 28 April

Sidebar Navigation

How can we help?

listing banner

Ask a question

Please send me more information on...

listing item

listing item

listing item

listing item