21/33 Braybrooke Street, Bruce ACT

Property Media

Property mainbar sidebar

Property Mainbar

21/33 Braybrooke Street, Bruce

$750,000+

3
2
2

Property Mobile Panel

For Sale

Inspection Details

Property Details

Property Type Townhouse

House Size 157m²

Boutique Living in Prime Bruce Position

Experience the Pinnacle of Modern Townhouse Living:
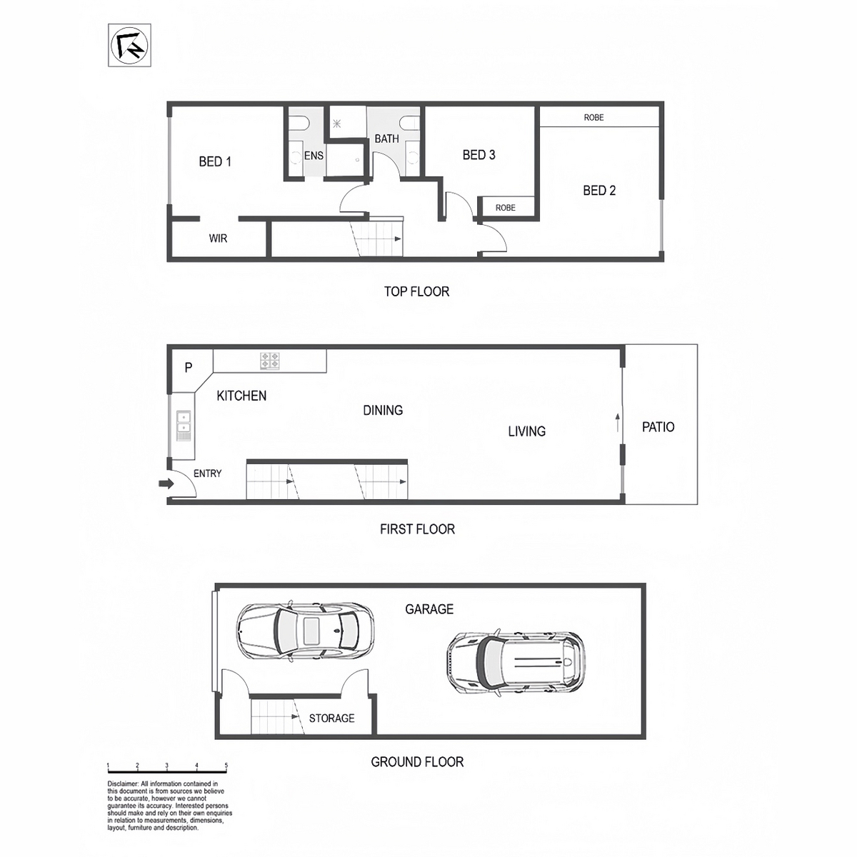
Nestled within the highly acclaimed 'Rockwell' complex, this stunning three-bedroom residence offers a masterclass in architectural design. Spread across three light-filled levels, the home has been meticulously crafted to be practical yet stylish - offering a sophisticated sanctuary for families, professionals, and savvy investors alike.

Sophisticated Living & Entertaining:
The heart of the home is located on the ground level, featuring an expansive open-plan living and dining area. The designer kitchen is a chef's dream, appointed with premium AEG appliances, built-in dishwasher and microwave, sleek stone benchtops, soft-close cabinetry, and a versatile island bench.

Seamless Indoor-Outdoor Living:
Double-glazed sliding doors lead to a generous, sun-drenched patio looking out on an established, easy-to-maintain courtyard garden. Surrounded by lush, seasonal plantings that cool the house in summer and let the light in during the cooler months, this private alfresco space is perfect for expanding your entertaining area or a quiet moment away from the hustle and bustle.

Restful Retreats:
The upper level is dedicated to comfort, housing three spacious bedrooms flooded with natural light. The master suite serves as a private oasis, complete with a luxury ensuite and a walk-in robe. The additional two bedrooms feature ample built-in storage and are serviced by a large, modern main bathroom.

Functional Excellence:
On the lower level, you'll find a secure double tandem lock-up garage and laundry with internal access, providing peace of mind and an abundance of additional storage space for tools, bikes, or seasonal gear.

Prime Bruce Location:
Centrally located in one of Canberra's most thriving suburbs, you are moments away from the best the inner-north has to offer:
- Education: Walking distance to the University of Canberra and Radford College.
- Recreation: Easy access to the AIS, GIO Stadium, and a network of bush tracks and cycle paths.
- Convenience: Short drive to North Canberra/Calvary Private Hospital, Westfield Belconnen, Jamison Plaza, ANU, and the Canberra City Centre.

Features at a Glance:
- Three spacious levels of architecturally designed living.
- Designer kitchen with AEG appliances and stone benchtops.
- Master suite with luxury ensuite and walk-in robe.
- Double-glazed windows and sliding doors for superior thermal and acoustic comfort.
- Ducted reverse-cycle heating and cooling throughout.
- Established, seasonal garden offering privacy and a peaceful connection to nature.
- Large double tandem garage with internal access and significant storage.
- Located in the premium 'Rockwell' development.
- Strata: $720.70/quarter
- Rates: $692.00/quarter
- Land tax (investors only): $901.89/quarter

This is a rare opportunity to secure a high-quality home in a blue-ribbon location. Book your inspection today!

Property Brochures

  • EER 6
  • Property ID 36QCGCY

property map

Property Sidebar

For Sale

Inspection Details

Property Details

Property Type Townhouse

House Size 157m²

Sidebar Navigation

How can we help?

listing banner
Julian Parmeter

Call 0415 377 225

Ask a question

Please send me more information on...

listing item

listing item

listing item

listing item