22/17 Wickham Street, East Perth WA

Property Media

Property mainbar sidebar

Property Mainbar

22/17 Wickham Street, East Perth

SOLD

2
2
1

Property Mobile Panel

For Sale

Property Details

Property Type Apartment

Relax...You Get to Have it All!

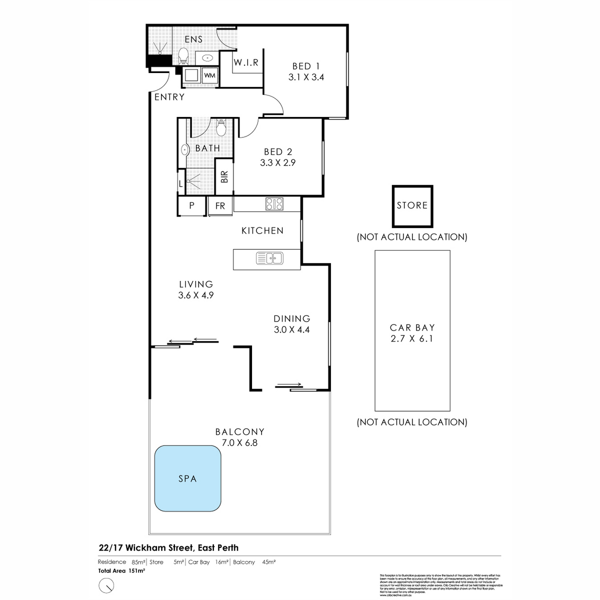
This perfect blend of spacious and impressive awaits you here, from within the walls of this quality 151sqm, 2 bedroom 2 bathroom apartment within the magnificent "Skye One Seven" complex, nestled in one of the city's most vibrant and sophisticated neighbourhoods, just footsteps from Claisebrook Cove, the new Perth Girls School civic precinct and the exciting Wellington Square parkland redevelopment.

The city views are absolutely breathtaking, especially from out on its massive terrace/balcony, where entertaining is enhanced by a timber-lined covered alfresco and bubbling outdoor spa. What a mesmerising backdrop. The stunning setup is all so easily accessible from within an open-plan living, meals and kitchen area, where most of your casual time will definitely be spent.

The commodious master-bedroom suite boasts a walk-in wardrobe, as well as a private ensuite bathroom with a shower, toilet and vanity. The second bedroom has built-in robes too and is neighboured by a stylish main bathroom with a vanity, toilet and shower of its own. A cleverly-concealed European-style laundry sits behind double doors � out of sight and out of mind.

There is even a secure parking bay, a storeroom and a smart electronic security system with keyed access to lifts and stairwells. An air-conditioned gym can also be utilised and enjoyed by residents living in the complex. The Versace tiled lobby is luxurious and unique to no other apartments in Perth.

Embrace the vibrant transformation of East Perth by starting your mornings with a leisurely stroll to a waterfront boardwalk café. Savour the aroma of freshly-brewed espresso as you soak in the sublime sight of the morning sun, casting its golden glow upon the serene Swan River. With convenient access to public transport, including the free CAT bus, and a plethora of nearby bars and restaurants, this exquisite location seamlessly combines urban excitement with a cosy village ambience. Experience a true sense of community and discover something truly extraordinary, right here!

Features include:
- Wooden flooring throughout
- Huge balcony/terrace with built in spa
- Timber-lined alfresco
- Amazing city & stadium views
- Spacious open-plan living, dining and kitchen area
- Double sinks plus water-filter tap
- Electric range-hood, hotplate and oven appliances
- Stainless-steel dishwasher
- Fully-tiled bathrooms � including the master ensuite (with a WIR)
- Mirrored BIR's to the 2nd bedroom
- European-style laundry
- Full-height living-area/balcony sliders
- Split-system air-conditioning
- Stone bench tops throughout
- Feature down lighting
- Feature stepped ceiling cornices
- Skirting boards
- Secure single car bay
- Storeroom
- Complex gymnasium

Points of Interest (all distance approximate):
- 240m to the Girls School Civic Precinct
- 400m to the nearest bus stop
- 450m to the Swan River
- 550m to Victoria Gardens
- 650m to Wellington Square redevelopment
- 750m to the WACA Ground
- 800m to Matagarup Bridge (for access to Optus Stadium)
- 850m to Queens Gardens
- 1.0km to Claisebrook Train Station
- 1.2km to Langley Park
- 1.3km to Optus Stadium
- 1.4km to Trinity College
- 1.6km to Perth CBD
- 2.3km to Crown Towers
- Highgate Primary School and Bob Hawke College catchment zones
- Close to both Mercedes College and Trinity College

Rates & Dimensions:
- Council Rates � $ 2,117.00 pa
- Water Rates � $ 1,460.57 pa
- Strata Admin - $634.32 p/qtr
- Strata Reserve - $240.00 p/qtr
- Internal Area � 85sqm
- Total Area � 151sqm

Aspect Views

  • City

Property Brochures

  • Property ID 3PCUFGJ

property map

Property article

Need a conveyancing quote for buying, selling or investing in WA?

For an instant quote get in touch with our team at LJ Hooker Settlements, one of Perth's most trusted settlement agencies, to see how they can assist with your property settlement.

Property Sidebar

For Sale

Property Details

Property Type Apartment

Sidebar Navigation

How can we help?

listing banner

Ask a question

Please send me more information on...

listing item

listing item

listing item

listing item