25/40 Wellington Street, East Perth WA

Property Media

Property mainbar sidebar

Property Mainbar

25/40 Wellington Street, East Perth

Sold For $310,000

2
1
1

Property Mobile Panel

For Sale

Property Details

Property Type Apartment

House Size 99m²

The Time To Buy Is Now!

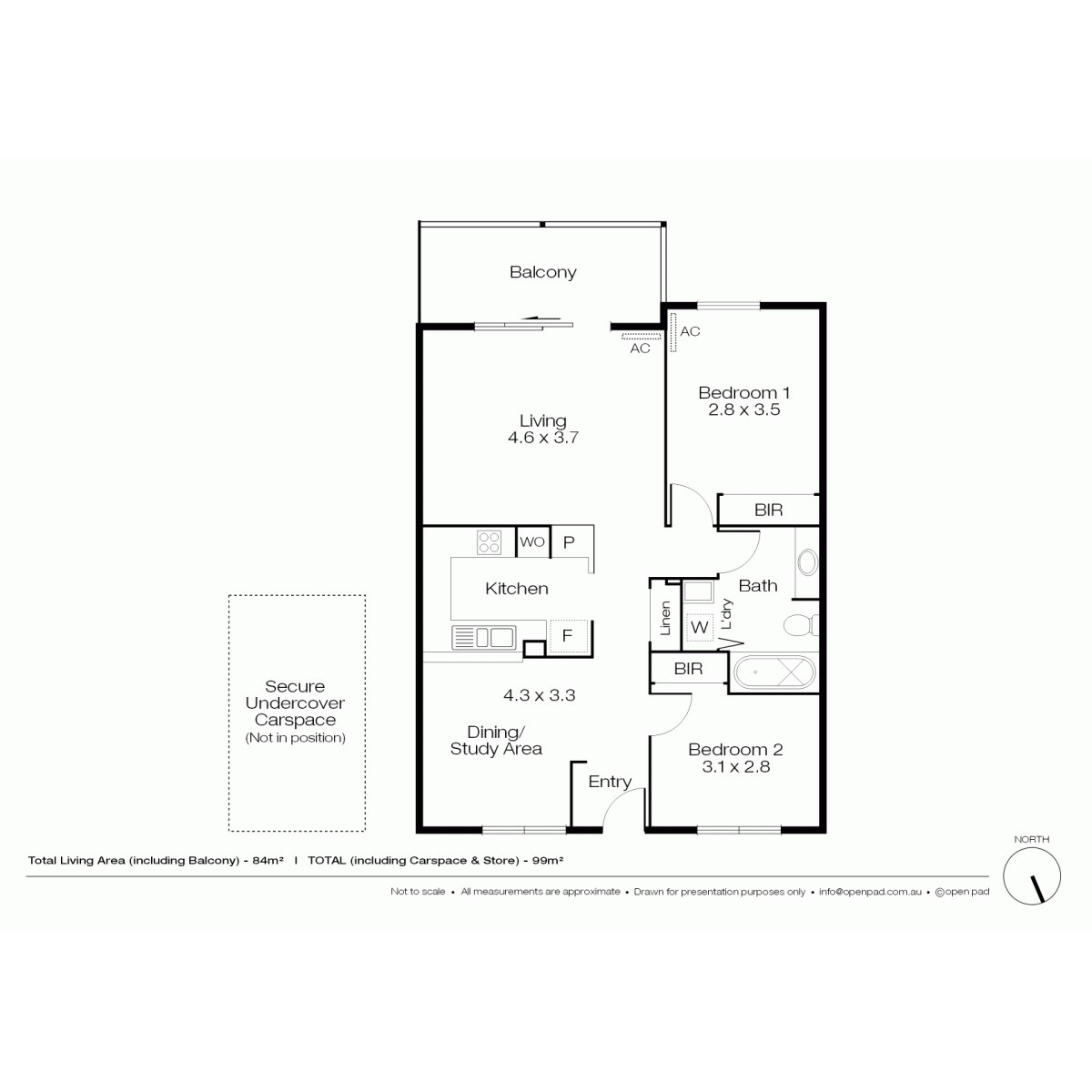
This neat and tidy 2 bedroom 1 bathroom second-floor apartment is perched right between both Wellington Square and our picturesque Swan River, offering style, spaciousness, functionality and flexibility in the one surprising package.

Gleaming wooden floorboards warm the living spaces here, from a welcoming study-come-dining area through to the comfortable living room where a fabulous connecting balcony allows you to absorb splendid city views through the neighbouring treetops. At the centre of the floor plan is a tiled kitchen with double sinks, ample storage and bench space and electric cooking appliances.

Both bedrooms are double-sized, whilst the versatile bathroom with a bathtub, showerhead, toilet, powder vanity and a cleverly-concealed European-style laundry makes the most of the current wall space on offer. The finishing touches are provided by full lift access, a secure car bay and your very own storeroom for good measure.

Located right on the doorstep to the city and within the "Ettington" complex - a superbly-situated building with 38 units spanning three levels - this delightful apartment is perfectly positioned right in front of a bus stop and close to a plethora of nearby parklands, the WACA Ground, Gloucester Park and the vibrant Royal Street food and café strip. The simple life well and truly awaits you here!

Features include:
- 2 bedrooms, 1 bathroom/laundry
- Flexible dining/study area off entry
- Large living room with balcony access
- Central kitchen comprising of double sinks, ample storage and bench space and electric cooking appliances
- Split-system air-conditioning to the master bedroom and living area
- Built-in wardrobes to both carpeted bedrooms
- Linen cupboard
- Feature skirting boards
- Secure under-cover car space
- Convenient basement storage

Points of Interest (all distance approximate):
- Red and Yellow CAT free bus services at your doorstep
- 600m to the Swan River
- 800m to Claisebrook Cove
- 900m to Royal Perth Hospital
- 1.1km to Claisebrook and McIver Train Stations
- 1.1km to Graham Farmer Freeway
- 1.6km to Optus Stadium
- 1.6km to Perth CBD

Rates & Dimensions:
- Council Rates - $1432.05pa
- Water Rates - $1,053.18pa
- Strata Rates - $870.90pq (approx.)
- Total living area (including balcony) - 84sqm (approx.)
- Total area (including car space and store) - 99sqm (approx.)

Property Brochures

  • Property ID 2YM5FGJ

property map

Property article

Need a conveyancing quote for buying, selling or investing in WA?

For an instant quote get in touch with our team at LJ Hooker Settlements, one of Perth's most trusted settlement agencies, to see how they can assist with your property settlement.

Property Sidebar

For Sale

Property Details

Property Type Apartment

House Size 99m²

Sidebar Navigation

How can we help?

listing banner

Ask a question

Please send me more information on...

listing item

listing item

listing item

listing item