1D Broadford Crescent, Findon SA

Property Media

Property mainbar sidebar

Property Mainbar

1D Broadford Crescent, Findon

Auction | Sunday 19th April @ 12pm

3
2
4

Property Mobile Panel

Auction Details

Inspection Details

Property Details

Property Type House

Land 374m²

Stylish Modern Living with Exceptional Outdoor Space

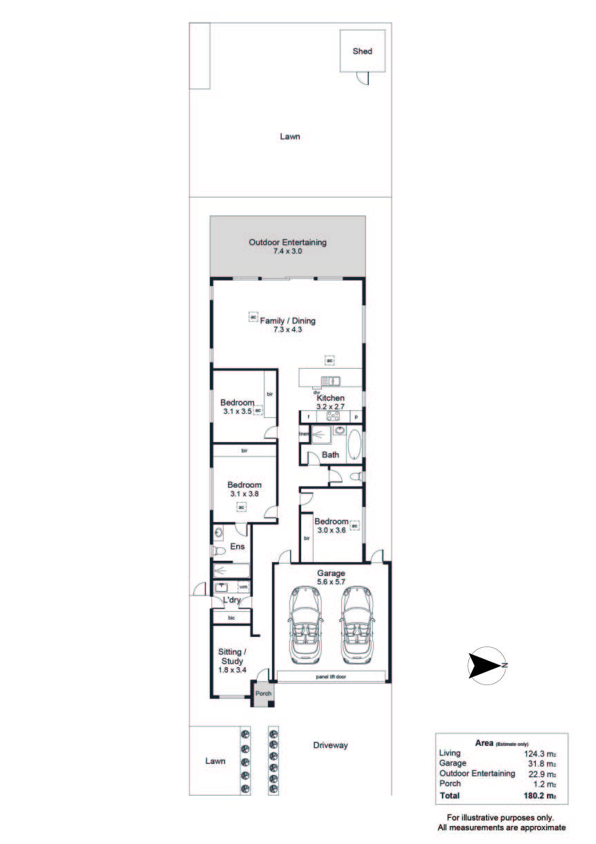
Designed for effortless living and contemporary comfort, this beautifully presented home delivers a perfect balance of space, style and functionality in a highly sought-after setting between the city and the coast. Offering a rare combination of low-maintenance living with a spacious backyard, along with the added benefit of a double garage and freestanding design.

Step inside to discover a light-filled open plan living and meals area, thoughtfully designed for both relaxed everyday living and seamless entertaining. At the heart of the home, the well-appointed kitchen features a central island with storage on both sides, generous bench space, ample cabinetry, gas cooktop, dishwasher and a large 900mm Westinghouse oven-perfectly catering to modern family living.

Extending effortlessly from the main living zone, wide sliding doors open onto a spacious alfresco area, complete with outdoor blinds and ceiling fans, creating a true extension of the indoor living space. Perfect for year-round entertaining, this inviting outdoor setting overlooks an impressively sized backyard-an increasingly rare offering for homes of this style-providing plenty of room for children and pets to enjoy.

Accommodation is well considered, with three spacious bedrooms, all featuring built-in wardrobes. The master bedroom is complete with its own ensuite, while the central family bathroom includes a bathtub, ideal for growing families. An additional lounge or study at the front of the home adds further flexibility to suit a range of lifestyles.

Positioned for lifestyle excellence, enjoy easy access to local parks and reserves, quality schooling options, and excellent shopping amenities, all just moments away.

Families will appreciate the range of nearby schools including Nazareth College, Allenby Gardens Primary, Flinders Park Primary, Lockleys North Primary and Underdale High School, with Seaton Park and Kidman Park Primary also close by. Public transport is readily accessible, with bus routes along Crittenden, Findon and Grange Roads just a short walk away.

Key Features:

- Light-filled open plan living and meals area
- Stylish kitchen with island bench, storage on both sides, gas cooktop, dishwasher and 900mm Westinghouse oven
- Three bedrooms with built-in wardrobes
- Master bedroom with private ensuite
- Central bathroom with bathtub
- Separate lounge or study at the front of the home
- Seamless indoor-outdoor flow via wide sliding doors
- Covered alfresco with outdoor blinds and ceiling fans
- Generous backyard on 374sqm allotment, ideal for families and pets
- Double garage with overhead storage plus additional driveway parking
- Prime location between city and beach

Specifications

Title: Torrens Title
Year built: 2016
Land size: 374sqm (approx)
Council: City of Charles Sturt
Council rates: $1,554.95pa (approx)
ESL: $161.85pa (approx)
SA Water & Sewer supply: $204.73pq (approx)

All information provided including, but not limited to, the property's land size, floorplan, floor size, building age and general property description has been obtained from sources deemed reliable. However, the agent and the vendor cannot guarantee the information is accurate and the agent, and the vendor, does not accept any liability for any errors or oversights. Interested parties should make their own independent enquiries and obtain their own advice regarding the property. Should this property be scheduled for Auction, the Vendor's Statement will be available for perusal by members of the public 3 business days prior to the Auction at the offices of LJ Hooker Mile End at 206a Henley Beach Road, Torrensville and for 30 minutes prior to the Auction at the place which the Auction will be conducted. RLA 242629

Features

  • Ensuite
  • Air Conditioning
  • Close to Schools
  • Close to Shops
  • Close to Transport
  • Roller Door Access
  • Window Treatments

Property Brochures

  • RLA 242629
  • Property ID YASHDM

property map

Property Sidebar

Auction Details

Inspection Details

Property Details

Property Type House

Land 374m²

Sidebar Navigation

How can we help?

listing banner

Ask a question

Please send me more information on...

listing item

listing item

listing item

listing item