79 Lewis Road, Glynde SA

Property Media

Property mainbar sidebar

Property Mainbar

79 Lewis Road, Glynde

Sold For $875,000

3
1
2

Property Mobile Panel

For Sale

Property Details

Property Type House

Land 690m²

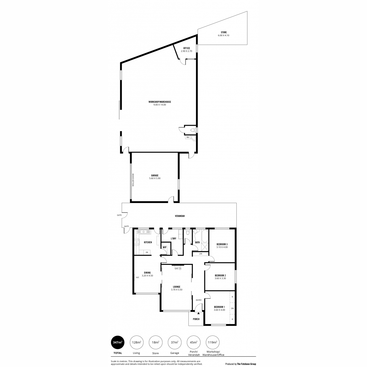
Double Brick Family Home: Zoned Commercial

Auction Location: On-site.

Located in the popular suburb of Glynde this beautifully maintained double brick family home has been much loved for generations. Impeccably positioned and so close to some of Adelaide's premium destinations, this home presents a great opportunity for the right buyer or investor to secure a great allotment in a highly sought after location.

Situated on 690 m2 (approx.) this charming corner allotment features three spacious bedrooms, massive lounge area with gas heating and separate kitchen plus dining area.

If you are looking for that ideal space - residence at the front and workshop / shed at the back then look no further, rarely do you find a potential commercial site with an existing residential dwelling which can be renovated/redeveloped (STCC).

Key Features:
•Built C.1968
•Zoned: Commercial
•Site Area: 690m2 (approx.)
•Huge workshop / shed (three-phase power) at the back
•Double brick construction
•Local Council: Norwood, Payneham & St Peters

Close to Marden and Firle shopping precincts as well as Norwood Parade. You are really spoilt for choice with some of Adelaide's premiere schooling options and public transport, not to mention the fantastic Payneham Oval with its sporting, playground and community facilities.

•• All information provided has been obtained from sources we believe to be accurate, however, we cannot guarantee the information is accurate and we accept no liability for any errors or omissions (including but not limited to a property's land size, floor plans and size, building age and condition). Interested parties should make their own enquiries and obtain their own legal advice. Should this property be scheduled for auction, the Vendor's Statement (Form 1) will be available at the LJ Hooker St Peters office for 3 consecutive business days immediately preceding the auction and at the auction for 30 minutes before it starts.

RLA 61345 RLA 282965 RLA 231015

Features

  • Toilets (1)

Property Brochures

  • RLA 61345
  • Property ID 1PZKFDZ

property map

Property Sidebar

For Sale

Property Details

Property Type House

Land 690m²

Sidebar Navigation

How can we help?

listing banner

Ask a question

Please send me more information on...

listing item

listing item

listing item

listing item