19 Cumberland Road, Greystanes NSW

Property Media

Property mainbar sidebar

Property Mainbar

19 Cumberland Road, Greystanes

$1,800,000-RENOVATED SPLIT LEVEL STUNNER!!!

4
3
2

Property Mobile Panel

For Sale

Inspection Details

Please contact
Jason Gebran or Mary Zaiter
to book an inspection

Property Details

Property Type House

Land 556m²

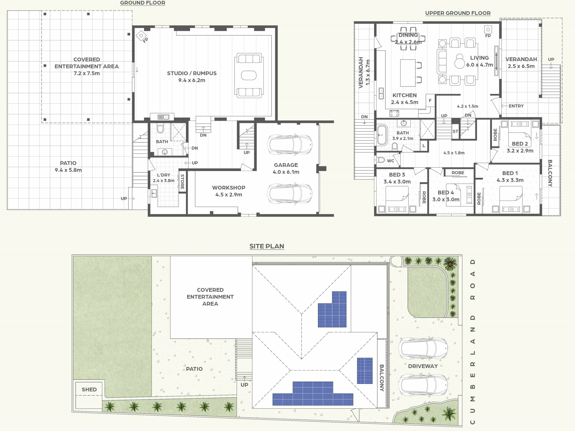
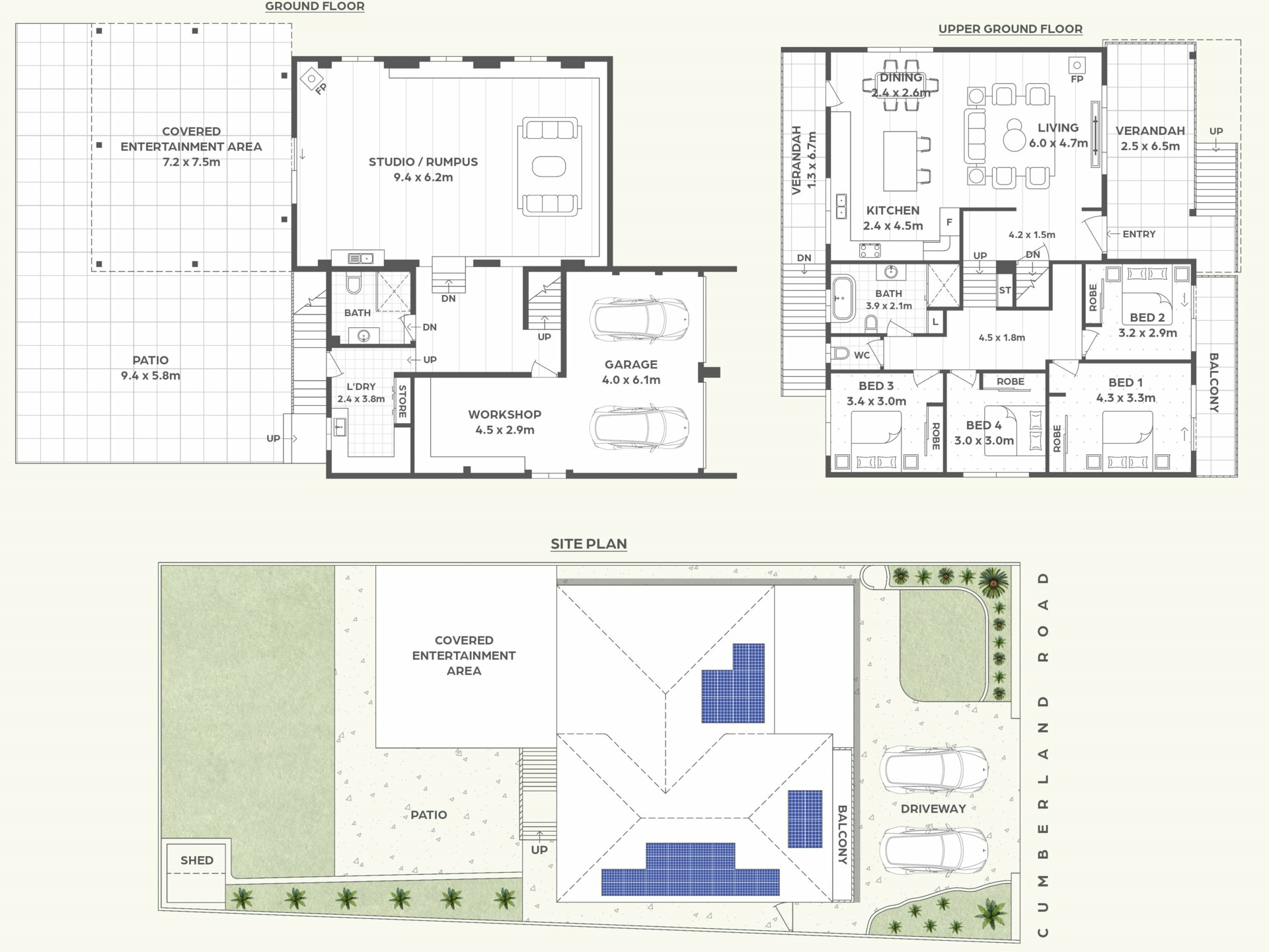
$1,800,000 - RENOVATED SPLIT LEVEL STUNNER YOU WILL LOVE!

Jason Gebran is proud to present 19 Cumberland Road Greystanes. Set in the heart of Greystanes just minutes walk from shops, parks schools and public transport at your door, this stunning split level renovated family home has got the lot. Multiple living areas, renovated kitchen and bathrooms, great entertaining space and much more. Our owners have already purchased their next home so all genuine offers will be welcome. Features include:

• Renovated and rendered large split level family home
• Large light filled open plan living and dining with timber fireplace
• Gourmet polyurethane kitchen with stone benches and dishwasher
• Upstairs 4 generous bedrooms all with built in robes, carpet and ceiling fans
• Balcony access off 2 bedrooms plus study nook and storage
• Fully tiled and as new bathroom plus 2nd separate toilet
• Downstairs, massive rumpus/games/media room plus kitchenette
• Double garage, workshop, 3rd full bathroom and large laundry
• Huge undercover concreted alfresco area plus garden and yard
• Ducted air conditioning, block out shutters, solar panels and 2 combustion fire places

A great home in a great spot that won’t last long. Call Jason for more information.

Property Brochures

  • Property ID 15WKH8W

property map

Property Sidebar

For Sale

Inspection Details

Please contact
Jason Gebran or Mary Zaiter
to book an inspection

Property Details

Property Type House

Land 556m²

Sidebar Navigation

How can we help?

listing banner

Ask a question

Please send me more information on...

listing item

listing item

listing item

listing item