99 Fitzgerald Road, Hallam VIC

Property Media

Property mainbar sidebar

Property Mainbar

99 Fitzgerald Road, Hallam

Sold For $765,000

3
1
1

Property Mobile Panel

For Sale

Property Details

Property Type House

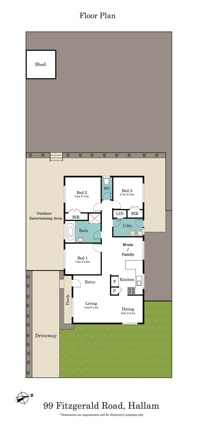
Fully Renovated & Ready with Subdivision Potential (STCA)

99 Fitzgerald Road, Hallam VIC 3803

A stunning transformation meets exciting opportunity at this immaculately renovated family home on a generous 530m� (approx.) block. Whether you're a homeowner, investor or developer, 99 Fitzgerald Road delivers comfort, quality and the chance to subdivide the rear (STCA).

Property Highlights:
- Fully renovated throughout � just move in and enjoy
- Three generous bedrooms with new flooring, lighting & paint
- Stylish modern kitchen with quality appliances & ample storage
- Contemporary bathroom with sleek fixtures & tiled finishes
- Open-plan living & dining with a fresh, light-filled feel
- New landscaping, fencing, and driveway � nothing to spend
- Large backyard with subdivision potential (STCA)
- Land size: 530m� approx. � dual occupancy potential

Minutes to Hallam Secondary College & local primary schools
Close to Westfield Fountain Gate, Hallam Station & freeway links
Family-friendly street with strong growth and rental demand

Whether you want to move straight in, rent out immediately, or build at the back (STCA) � this property is ready for your vision.
Contact us today to arrange your private inspection or request the Section 32.
Mahdi Tawakoli 0480 116 248

Property Brochures

  • Statement of Information Download
  • Due Diligence Checklist View
  • Property ID 96KHWR

property map

Property Sidebar

For Sale

Property Details

Property Type House

Sidebar Navigation

How can we help?

listing banner

Ask a question

Please send me more information on...

listing item

listing item

listing item

listing item