34 Smithfield Street, Harristown QLD

Property Media

Property mainbar sidebar

Property Mainbar

34 Smithfield Street, Harristown

Sold For $700,000

3
1
1

Property Mobile Panel

For Sale

Property Details

Property Type House

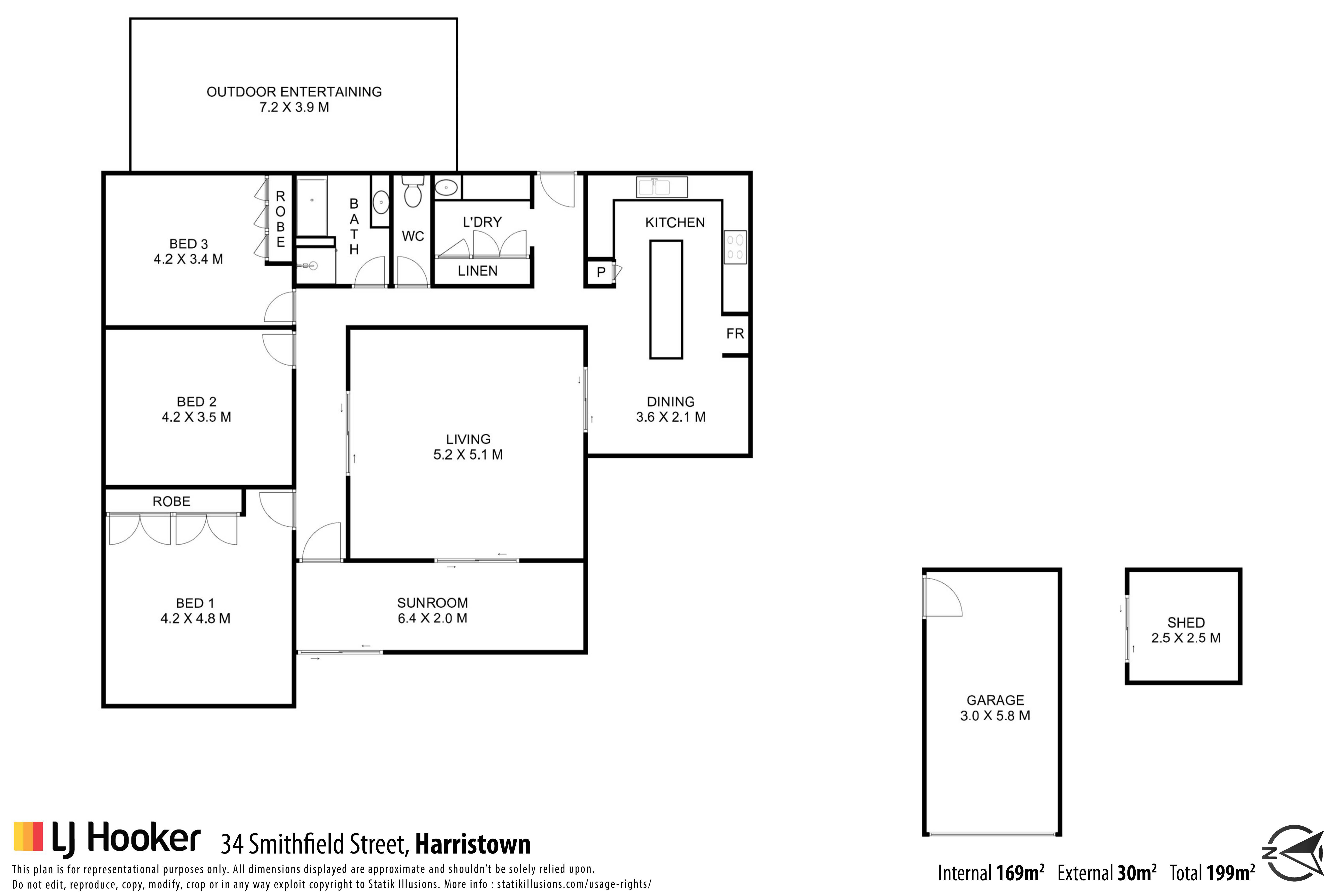
Presentation sure to Impress

Having lived and enjoyed this property for the last 24 years our current owner is making a move.

Owner occupiers and investors alike will reap the benefit of ongoing care and maintenance of this impressive property, including the $40,000 recently spent on the totally remodelled kitchen.

All 3 bedrooms are oversized, and the formal lounge has the added advantage of extra space created by the adjoining sunroom. There is nothing you will need to do here including carpets and paint the presentation is wonderful.

Privately fenced 647m2 in a quiet location of Harristown keeping you close to all amenities including Darling Heights School, the University and transport to major shopping centres.

This is one property you definitely need to short list.

Property Brochures

  • Property ID 1Z65F4W

property map

Property Sidebar

For Sale

Property Details

Property Type House

Sidebar Navigation

How can we help?

listing banner

Ask a question

Please send me more information on...

listing item

listing item

listing item

listing item