10 Liley Street, Hilton SA

Property Media

Property mainbar sidebar

Property Mainbar

10 Liley Street, Hilton

Sold For $688,000

3
1
4

Property Mobile Panel

For Sale

Property Details

Property Type House

Land 758m²

CONTRACTED AT AUCTION

C1926 character home in the heart of the inner west!

TO REGISTER FOR THE ONLINE AUCTION PLEASE CONTACT THE SELLING AGENTS.

Why you'll love it

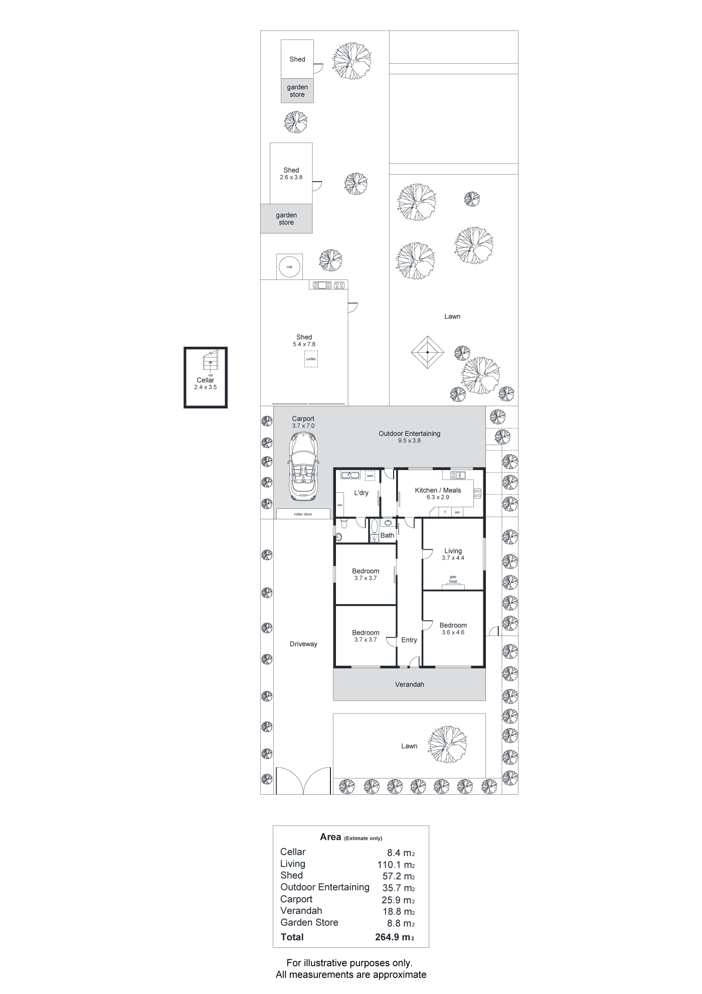
Opportunities like this don't come up often - this very well looked after c1926 character home on 758sqm (approx.) of land in the convenient and tightly held City fringe suburb of Hilton.

From the street, you will be impressed with its character, charm and the symmetrical stone front fa�ade. Venture inside to a functional floorplan with 5 main rooms and high ceilings, leading down to the kitchen. All of this plus space to further extend the home for a modern style living (STCC).

Ideally located just 6 minutes to the Adelaide CBD, and only a short stroll to the Hilton Shopping Centre. Public transport, Cowandilla Primary School, local cafes and restaurants are also within walking distance.

Key features

- Attractive character facade
- Flexible floorplan with 5 main rooms and high ceilings
- 3 generous size bedrooms
- Kitchen with gas cooktop and plenty of storage
- Immediate liveability, but perfect for renovation or extension (stcc)
- Gas heating in the living room
- Separate laundry, bathroom and toilet
- Carport with long drive through access and roller door
- 5.4m x 7.8m (approx.) shed with underground cellar and 2nd kitchen with gas cooktop
- x2 additional storage sheds
- Large symmetrical block of 758sqm (approx.)
- Ideally located on the city fringe just 2.8km (approx.) to the CBD

Grab it now, or blink and it'll be gone.

The figures

Title: Torrens Title
Land size: 758sqm (approx)
Site dimensions: 15.63m frontage x 48.46m depth
Zoning: Residential 23
Year built: c1926
Council: City of West Torrens
Council rates: $1,460.65pa (approx)
ESL: $153.05pa (approx)
Water & sewer supply: $185.41pq (approx.)

All information provided including, but not limited to, the property's land size, floorplan, floor size, building age and general property description has been obtained from sources deemed reliable. However, the agent and the vendor cannot guarantee the information is accurate and the agent, and the vendor, does not accept any liability for any errors or oversights. Interested parties should make their own independent enquiries and obtain their own advice regarding the property. Should this property be scheduled for Auction, the Vendor's Statement will be available for perusal by members of the public 3 business days prior to the Auction at the offices of LJ Hooker Mile End at 206a Henley Beach Road, Torrensville and for 30 minutes prior to the Auction at the place which the Auction will be conducted. RLA 242629


•• LJ Hooker Mile End & Projects Adelaide have implemented preventative health measures for property inspections and auction activities. If you are unwell or have recently travelled interstate or overseas, please contact our Property Consultants to discuss alternate ways to view this property.••

Features

  • Close to Schools
  • Close to Shops
  • Close to Transport

Property Brochures

  • RLA 242629
  • Property ID K6WHDM

property map

Property Sidebar

For Sale

Property Details

Property Type House

Land 758m²

Sidebar Navigation

How can we help?

listing banner

Ask a question

Please send me more information on...

listing item

listing item

listing item

listing item