4 Yanego Road, Ingle Farm SA

Property Media

Property mainbar sidebar

Property Mainbar

4 Yanego Road, Ingle Farm

SOLD

3
2
2

Property Mobile Panel

For Sale

Property Details

Property Type House

When Only the Best Will Do Stunning Modern Residence

You can afford every modern luxury without sacrificing on quality, space or style.

Independent "Torrens Title" residence guaranteed to win your heart and offering outstanding value with every modern comfort.

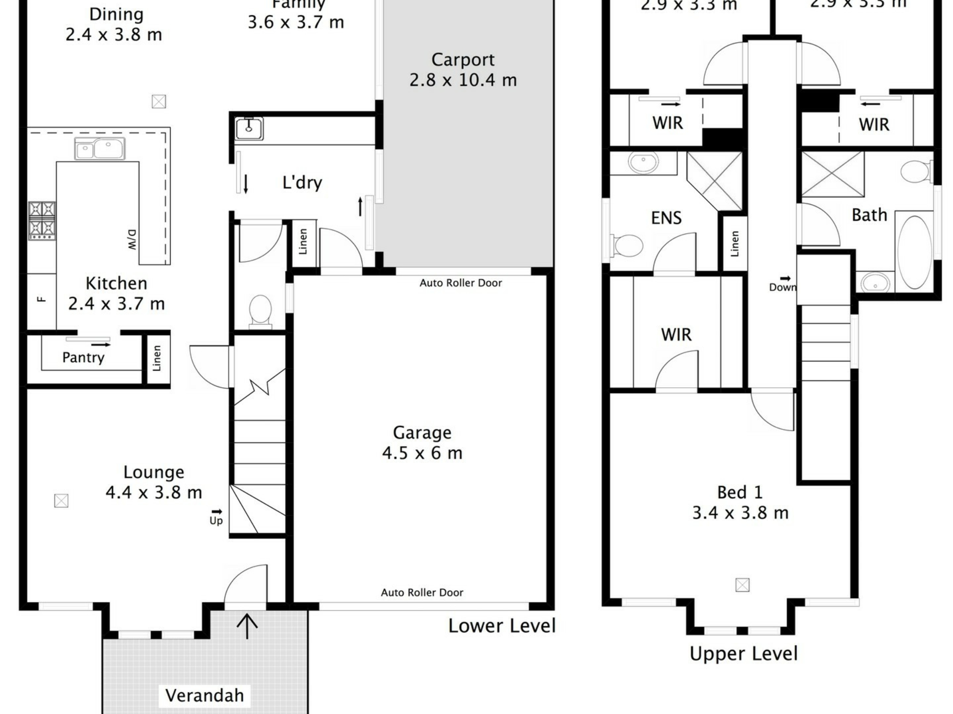
Most impressive street frontage using a combination of innovative building materials such as brick, render and timber sets the scene for all the features to be discovered inside this outstanding residence of six main rooms plus superb outdoor undercover entertainment area and large balcony.

Floor plan offers two levels - ground floor boasts two distinctive entertainment areas - ideal for any growing family or adults enjoying their own space (or home office), open plan kitchen, living and dining areas with direct access onto the large, and beautifully established paved pergola - a superb 'alfresco' entertainment space framed by easy care raised garden beds. The large laundry with direct access from the double garage and third WC adds to the homes practical use of space.

Upstairs you will enjoy three outstanding bedrooms all with walk-in robes whilst the superior master bedroom also enjoys a sparkling and spacious en-suite and access onto the large balcony. Both bathrooms are decorated in a crisp white and grey theme with porcelain tiles to ceiling height and frameless shower alcoves.

Uncompromised quality is evident everywhere from the central gourmets kitchen with extensive 2 Pak cupboards, Caeser Stone benchtops, 90mm wide gas bench top hot plates with matching oven and range-hood, large porcelain tiles to all living areas, the contrasting feature walls, the stunning window treatments and the practicalities of ducted reverse cycle air conditioning, LED downlights throughout plus 1.5KW Solar System with 8 Quality Panels and new Invertor (contracted to a most valuable 49.3c rebate). Parking is a breeze with extra wide lock up garage under the main roof plus the extra deep carport - ideal for boat, pop-up caravan and or trailer.

For further information or to inspect this superb, executive style residence please contact listing agent Mila Inat of LJ Hooker Woodville on 0411 641 120 or Lisa Xu 0432 235 818 or office 8243 0866 or email: [email protected] - 7 days a week.

RLA 61848

Property Brochures

  • RLA 242629
  • Property ID P26HDM

property map

Property Sidebar

For Sale

Property Details

Property Type House

Sidebar Navigation

How can we help?

listing banner

Ask a question

Please send me more information on...

listing item

listing item

listing item

listing item