3 Deborah Street, Kelso QLD

Property Media

Property mainbar sidebar

Property Mainbar

3 Deborah Street, Kelso

Offers over $649,000

3
2
7

Property Mobile Panel

For Sale

Inspection Details

Please contact
Suzanne Coverlid
to book an inspection

Property Details

Property Type House

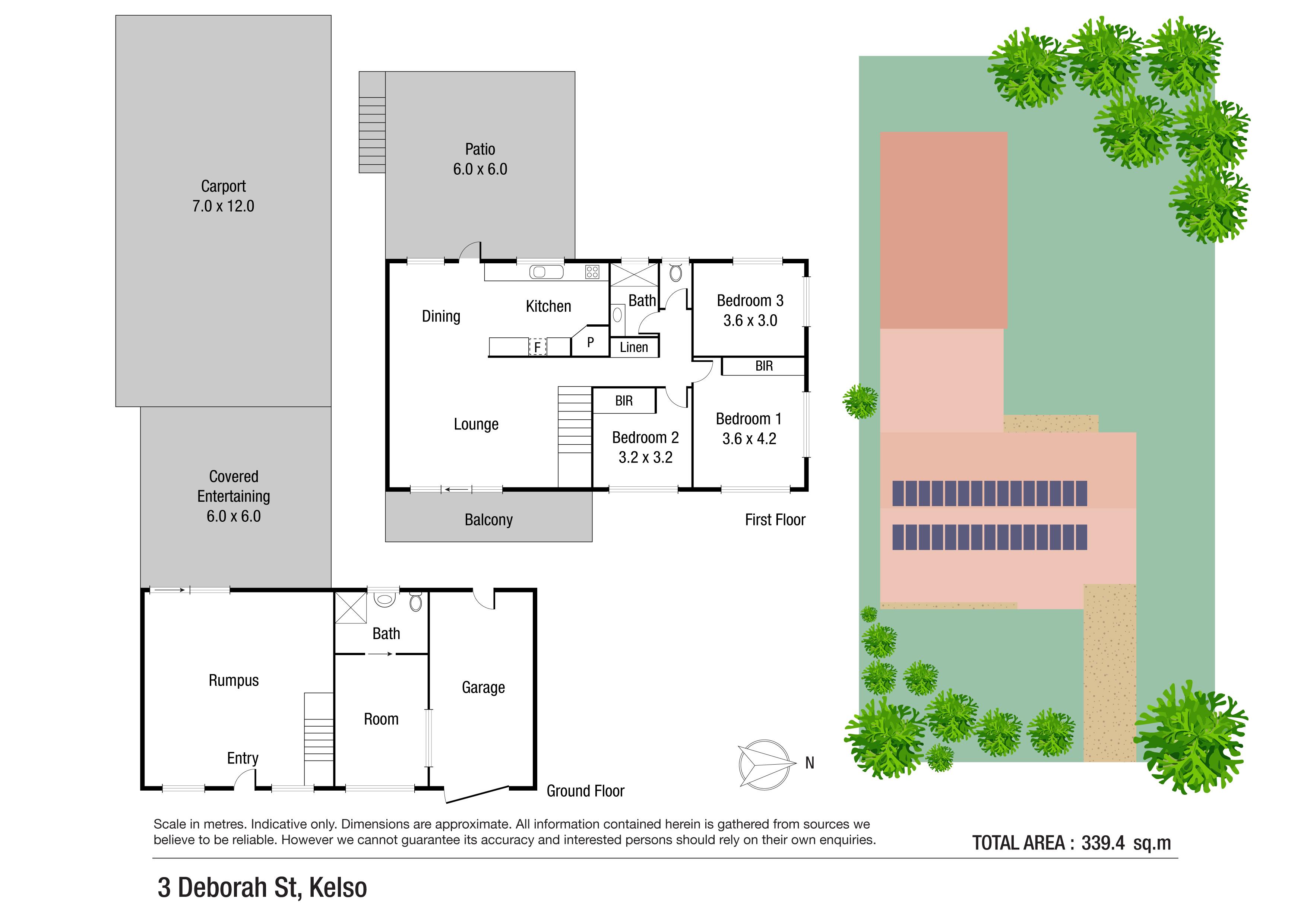
SPACIOUS HIGHSET HOME WITH OUTSTANDING ENTERTAINING AND STORAGE

Set behind secure fencing with an electric gate, this well-presented highset home offers exceptional space, versatility, and lifestyle appeal.

Downstairs features a generous rumpus room, bathroom, and additional multipurpose area-ideal for teenagers, guests, or a home office-along with internal access to the upper level.

Upstairs, internal stairs lead to a light-filled open-plan lounge, dining, and kitchen area, creating a welcoming hub for everyday living. The renovated bathroom and three well-sized bedrooms provide comfortable family accommodation.

Outdoor living is a standout, with a large 6m x 6m entertaining deck and an additional 6m x 6m patio-perfect for hosting family and friends. Vehicle accommodation and storage are well catered for with a carport under the home plus a massive 7m x 12m carport suitable for boats, caravans, or multiple vehicles.

While there are a few minor finishing touches to complete, this property presents a fantastic opportunity to add value and personalise to your taste.

Features include:

• Fully fenced block with electric gate
• Highset home with internal stairs
• Downstairs rumpus room and bathroom
• Open-plan living, dining, and kitchen
• Renovated upstairs bathroom
• Three good size bedrooms
• 6m x 6m entertaining deck
• 6m x 6m patio
• Huge 7m x 12m carport plus under-house carport
• Excellent storage and workspace options
• Scope to add value with minor improvements

This is a versatile and well-located home offering space, security, and strong future potential-ideal for families, tradies, or investors alike.

Property Brochures

  • Property ID 47HHWK

property map

Property Sidebar

For Sale

Inspection Details

Please contact
Suzanne Coverlid
to book an inspection

Property Details

Property Type House

Sidebar Navigation

How can we help?

listing banner

Ask a question

Please send me more information on...

listing item

listing item

listing item

listing item