78 South Parkway, Lightsview SA

Property Media

Property mainbar sidebar

Property Mainbar

78 South Parkway, Lightsview

SOLD

3
2
1

Property Mobile Panel

For Sale

Property Details

Property Type Townhouse

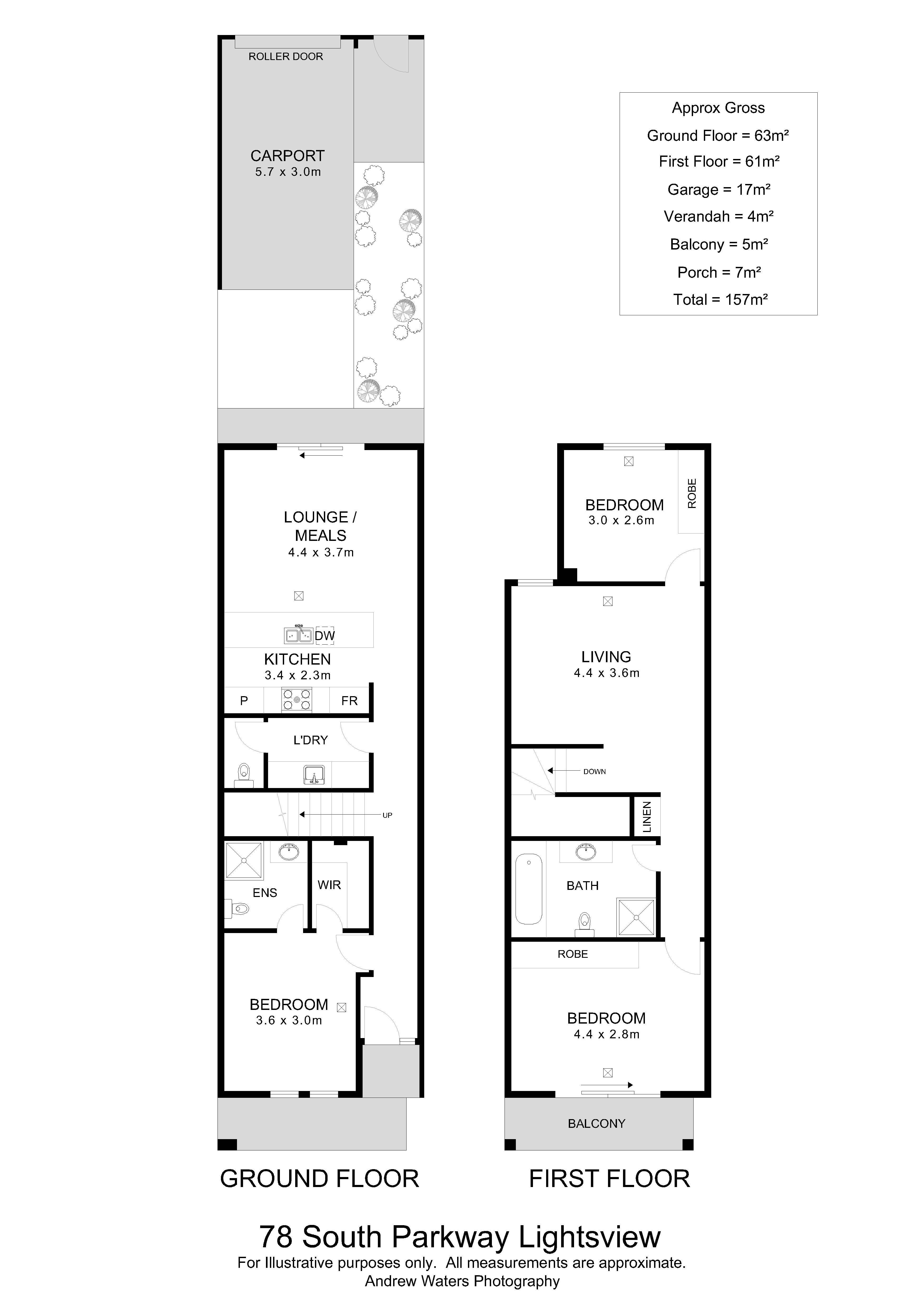
Modern Townhouse in Sought After Lightsview

This modern townhouse is ideal for those seeking a low maintenance, lock up and leave lifestyle.

The ground floor of the home features the master bedroom which features a walk in wardrobe and ensuite. The laundry is tucked behind the kitchen and includes a separate WC. The kitchen features ample bench and cupboard space, a gas cooktop and dishwasher and overlooks the living and meals area downstairs.

Heading upstairs, a large family room on the landing provides a separate space for entertaining. The two remaining bedrooms both feature built-in wardrobes, and the front one includes a private balcony. The central bathroom includes a separate bathtub.

Outside, a paved patio area offers an ideal entertaining space while the front features an easy care garden bed. Secure carport parking is available for one vehicle, accessible via a rear laneway.

Less than 20 minutes to the CBD, with easy access to public transport on Hampstead Road. A short walk to Lightsview Adventure Playground, sporting fields for soccer and tennis, and scenic walking trails. Greenacres Central is nearby for weekly shopping, boutique stores, essential services, and a variety of cafes and restaurants. Plus, excellent schooling options close by, including Hampstead Primary and Roma Mitchell Secondary College.

Key Features

- Kitchen equipped with a gas cooktop, dishwasher and ample bench and cupboard space
- Living and meals area downstairs
- Laundry behind the kitchen with a separate WC
- Master bedroom with walk-in wardrobe and ensuite
- Second living area upstairs
- Both upstairs bedrooms include built-in wardrobes
- One bedroom has access to a balcony
- Central bathroom with a separate bathtub
- Easy care garden beds
- One allocated undercover parking space
- Floating floors downstairs, cosy carpets upstairs
- Ducted air conditioning throughout

Specifications

Title: Torrens Title
Year built: 2015
Council: Port Adelaide Enfield
Council rates: $1,107.30pa (approx)
ESL: $132.50pa (approx)
SA Water & Sewer supply: $167.24pq (approx)

All information provided including, but not limited to, the property's land size, floorplan, floor size, building age and general property description has been obtained from sources deemed reliable. However, the agent and the vendor cannot guarantee the information is accurate and the agent, and the vendor, does not accept any liability for any errors or oversights. Interested parties should make their own independent enquiries and obtain their own advice regarding the property. Should this property be scheduled for Auction, the Vendor's Statement will be available for perusal by members of the public 3 business days prior to the Auction at the offices of LJ Hooker Mile End at 206a Henley Beach Road, Torrensville and for 30 minutes prior to the Auction at the place which the Auction will be conducted. RLA 242629

Features

  • Air Conditioning
  • Close to Schools
  • Close to Shops
  • Close to Transport

Property Brochures

  • RLA 242629
  • Property ID XEPHDM

property map

Property Sidebar

For Sale

Property Details

Property Type Townhouse

Sidebar Navigation

How can we help?

listing banner

Ask a question

Please send me more information on...

listing item

listing item

listing item

listing item