45 Tarragon Street, Mile End SA

Property Media

Property mainbar sidebar

Property Mainbar

45 Tarragon Street, Mile End

Auction | Sunday 3rd May @ 3:45pm

3
1
4

Property Mobile Panel

Auction Details

Inspection Details

Property Details

Property Type House

Land 696m²

Endearing Character Home Situated on 696 sqm of Potential

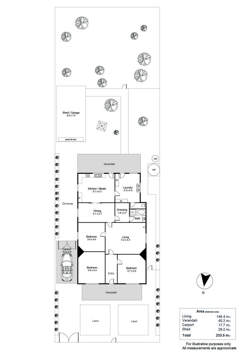
Perfectly positioned on Tarragon Street, Mile End, this charming character home has been tightly held and lovingly cared for for over 55 years, and now presents an exciting opportunity for its next chapter. Whether you're looking to move in, invest, or further enhance, the foundations here are exceptional.

Behind the fa�ade, the home opens to a classic central hallway, where high ceilings and generous proportions immediately create a sense of space and warmth.

Offering three well-sized bedrooms, all positioned for privacy, the flexible floorplan also includes a spacious central living room, ideal for relaxing or entertaining.

Flowing through the home, the large kitchen and meals area forms the true heart of the property. With ample bench and cupboard space, gas cooktop, and split system air conditioning, it's a functional and inviting space that connects seamlessly to an adjoining dining area, perfect for family gatherings.

The oversized laundry provides excellent storage and practicality, with easy access to the family bathroom featuring a bathtub and separate WC, enhancing everyday convenience.

Step outside and discover a generous backyard offering both space and versatility. The rear verandah is ideal for year-round entertaining, overlooking generous gardens and lawn areas with room to further enhance or landscape to your taste. A selection of mature fruit trees adds charm and potential for the green thumb.

Vehicle accommodation is well catered for with a long drive-through carport leading to a large garage/shed, perfect for storage, workshop use, or additional parking.

Set in one of Mile End's most sought-after pockets, this home offers unbeatable lifestyle convenience. Enjoy being just moments from Henley Beach Road's cafes, restaurants and shopping, with easy access to the CBD, local parks and the coastline only a short drive away. Zoned for Adelaide High School and Adelaide Botanic High School, the location is as practical as it is desirable.

Key Features

- Three spacious bedrooms with flexible layout
- Central living room
- Large kitchen and meals area with gas cooktop and ample storage
- Separate dining area ideal for entertaining
- Oversized laundry with excellent storage
- Bathroom with bathtub and separate WC
- Elegant high ceilings
- Rear verandah for outdoor entertaining
- Generous gardens with fruit trees and lawn space
- Long drive-through carport plus large garage/shed
- Prime location close to CBD, shops, cafes and schools

Specifications

Title: Torrens Title
Year built: c1925
Land size: 696sqm (approx)
Council: City of West Torrens
Council rates: $2,126.60pa (approx)
ESL: $128.75pa (approx)
SA Water & Sewer supply: $244.55pq (approx)

All information provided including, but not limited to, the property's land size, floorplan, floor size, building age and general property description has been obtained from sources deemed reliable. However, the agent and the vendor cannot guarantee the information is accurate and the agent, and the vendor, does not accept any liability for any errors or oversights. Interested parties should make their own independent enquiries and obtain their own advice regarding the property. Should this property be scheduled for Auction, the Vendor's Statement will be available for perusal by members of the public 3 business days prior to the Auction at the offices of LJ Hooker Mile End at 206a Henley Beach Road, Torrensville and for 30 minutes prior to the Auction at the place which the Auction will be conducted. RLA 242629

Features

  • Air Conditioning
  • Close to Schools
  • Close to Shops
  • Close to Transport

Property Brochures

  • RLA 242629
  • Property ID YBEHDM

property map

Property Sidebar

Auction Details

Inspection Details

Property Details

Property Type House

Land 696m²

Sidebar Navigation

How can we help?

listing banner

Ask a question

Please send me more information on...

listing item

listing item

listing item

listing item