499 Mosquito Hill Road, Mosquito Hill SA

Property Media

Property mainbar sidebar

Property Mainbar

499 Mosquito Hill Road, Mosquito Hill

SOLD

3
2
2

Property Mobile Panel

For Sale

Property Details

Property Type House

Land 78.73 ha

Lifestyle & Grazing Estate on 78.73ha (194 acres)

A unique and captivating estate, most previously known as "Willowfields".

••
VIEWING BY REGISTERED APPOINTMENT ONLY. PLEASE SUBMIT AN ENQUIRY OR TEXT 0423 341 797 FOR FURTHER UPDATES.
••

A truly exceptional property, perfect for the discerning beef producer seeking a top-tier holding, those wanting a lifestyle estate or change of 'city-pace'.
Such a rare and valuable offering for those wanting to secure an expansive landholding with huge potential.


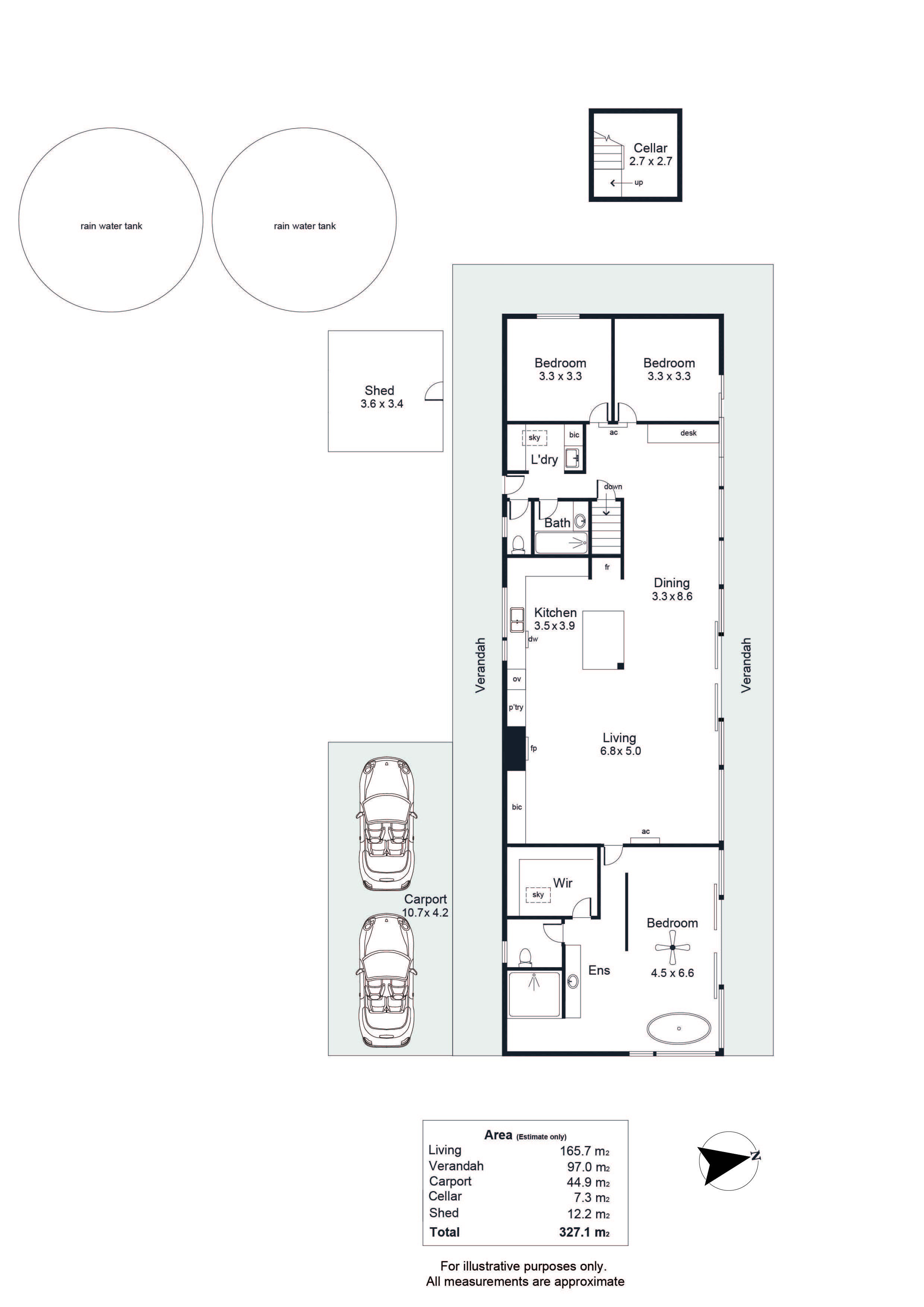
The homestead:
The homestead is a refined sanctuary, seamlessly combining contemporary style with peaceful natural surrounds. At its heart, the expansive living area impresses with vaulted ceilings, polished concrete floors, and sweeping floor-to-ceiling windows that frame the landscape.

Each of the three bedrooms is comfortably carpeted, while the luxurious master suite stands out with an open concept ensuite featuring a deep soak tub perfectly positioned to take in the rolling hill views.

Additional features include a generous wine cellar, a wood-burning combustion heater in the lounge, a monitored security system, NBN fixed wireless connectivity, 300,000 litres of rainwater storage-and so much more!

Orchard and Gardens:
A secure 80m x 60m orchard showcases an impressive collection of prospering fruit trees, with a mix of sheltered and open-air plantings.
You'll find everything from cherries, apricots, and plums to apples, figs, citrus, berries, olives, macadamias, pistachios, avocados-and plenty more-providing an exceptional level of self-sufficiency.

The grounds also feature raised vegetable beds, a chicken run, a firepit area with ambient lighting, dog kennels, multiple garden sheds and an automated irrigation system.

The Land, Water and Surrounds
Separated into 14 paddocks, the property features a central laneway providing easy access to an outstanding cattle yard complex, complete with a covered crush and dedicated work area. All-weather and semi-trailer access ensures year-round stock movement.

Adjacent to the yards are a fully equipped implement shed and workshop for added convenience. Water security is excellent, with supply from multiple dams, complemented by an average annual rainfall of 700mm (28 inches). Water is gravity-fed and reticulated to troughs throughout all paddocks.

The property has historically supported 70�80 top-tier Angus breeding cows with MN3 status-a herd built through 33 years of selective and careful breeding.

Location
Located about 1 hour from Adelaide City Centre, this spot is just 30 minutes from Aldinga, which offers a shopping centre for weekly needs, essential services, cafés, and restaurants. It's also only 15 minutes to Goolwa and less than 25 minutes to Victor Harbor Town Centre-both ideal for regular shopping and appointments.

Key Features

- Land size 78.73ha (approx)
- Zoning: Productive Rural Landscape (PruL)
- Three bedroom and two bathroom homestead, modern kitchen and spacious living areas
- Some luxury features in the home, underfloor heating and a wine cellar
- NBN fixed wireless connectivity
- Secure orchard houses many fruit and nut trees, plus a chicken run, dog kennels, and multiple sheds
- 14 paddocks with a central laneway providing easy access to a cattle yard complex
- 300,000L water tank storage plus multiple dams

Specifications

Title: Torrens Title
Year built: c1982
Land size: 78.73ha (approx)
Council: Alexandrina Council
Council rates: $4,546.40pa (approx)
ESL: $171.65pa (approx)
SA Water & Sewer supply: TBC

••
VIEWING BY REGISTERED APPOINTMENT ONLY. PLEASE SUBMIT AN ENQUIRY OR TEXT 0423 341 797 FOR FURTHER UPDATES.
••


All information provided including, but not limited to, the property's land size, floorplan, floor size, building age and general property description has been obtained from sources deemed reliable. However, the agent and the vendor cannot guarantee the information is accurate and the agent, and the vendor, does not accept any liability for any errors or oversights. Interested parties should make their own independent enquiries and obtain their own advice regarding the property. All livestock/animals represented in photo's are for marketing purposes only, any and all livestock/animals associated with the property are on separate contractual arrangements and not included in the sale. For more information contact the Selling Agent. The property is being sold as is with all appliances, fixtures and fittings. The Purchaser is to verify whether they are in working order. The Vendor or Agent make no warranty or guarantee to their operation and/or function. All statements made about fruit, food and produce trees is as a guide, Purchaser to verify all aspects of the land and accept as is prior to their decision to make an offer. RLA 242629

Features

  • Air Conditioning

Property Brochures

  • RLA 242629
  • Property ID XJRHDM

property map

Property Sidebar

For Sale

Property Details

Property Type House

Land 78.73 ha

Sidebar Navigation

How can we help?

listing banner

Ask a question

Please send me more information on...

listing item

listing item

listing item

listing item