209 Kargotich Road, Oakford WA

Property Media

Property mainbar sidebar

Property Mainbar

209 Kargotich Road, Oakford

From $2,500,000

8
3
4

Property Mobile Panel

For Sale

Inspection Details

Property Details

Property Type House

Land 2 ha

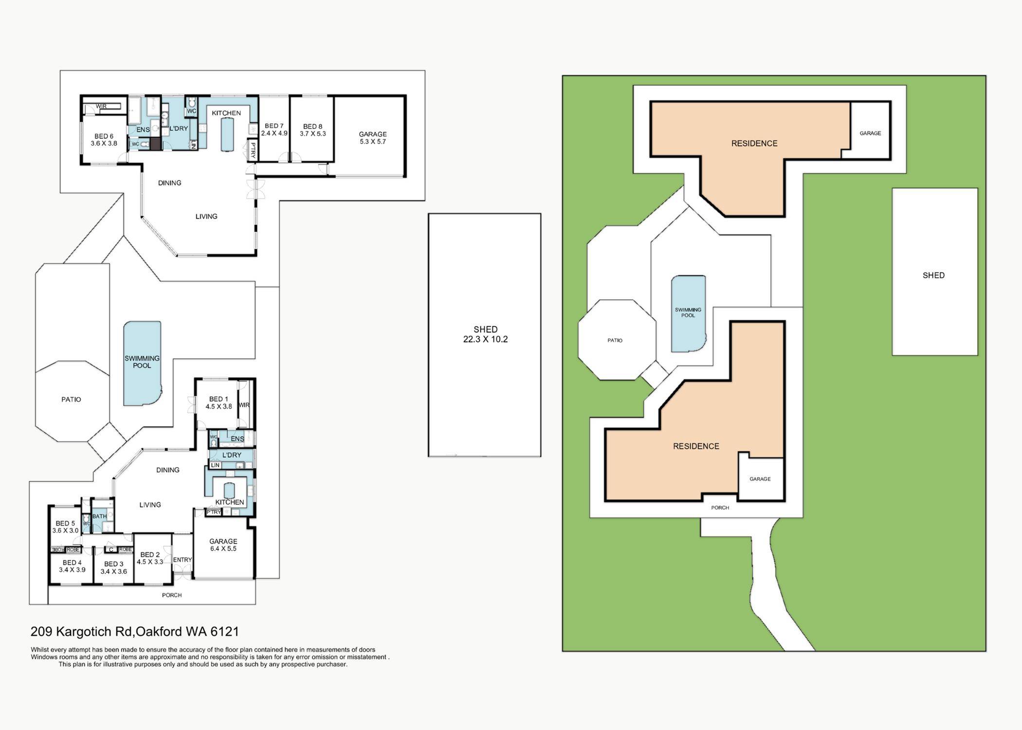
RARE DUAL LIVING ON A 2 HA BLOCK

Set on an expansive 2-hectare rural-zoned landholding, this exceptional Oakford estate delivers the ultimate blend of space, privacy, and multi-generational living. With two substantial homes, a resort-style pool zone, a massive shed, and a beautifully treed perimeter providing natural shade and seclusion, this is a property that offers lifestyle freedom on a scale that's increasingly hard to find.

Whether you're seeking room for extended family, dual rental income, hobby farming, or simply a peaceful rural retreat within easy reach of urban conveniences, this address stands in a class of its own.

THE MAIN RESIDENCE

A Spacious 4-Bedroom Family Home With Study & Generous Living Zones

The primary home is a large 4-bedroom, 2-bathroom residence with a double garage and an additional study/lounge, offering a flexible layout ideal for families of all sizes.

Key features include:
• A king-sized master suite complete with private ensuite
• Three secondary bedrooms, all well-proportioned and serviced by a central bathroom
• A huge open-plan kitchen, the true heart of the home, boasting Extensive bench space, Abundant cabinetry & Excellent functionality for large households or entertainers
• Multiple living zones that flow effortlessly for everyday comfort
• Double lock up garage
• Ducted reverse-cycle air conditioning for year-round climate control

This home is designed for comfort, practicality, and the kind of space that makes rural living truly enjoyable.

THE SECOND RESIDENCE

A Full-Sized 3-Bedroom Home-Perfect for Extended Family or Rental Income

The second dwelling is not an afterthought-it's a genuinely spacious 3-bedroom, 1-bathroom home with its own double garage, ideal for multi-generational living, guest accommodation, or dual-income potential.

Highlights include:
• A large master bedroom with semi-ensuite access
• Two additional great-sized bedrooms
• A huge living area offering flexibility for families
• A well-appointed kitchen with ample storage and workspace
• Ducted reverse-cycle air conditioning throughout
• Double lock up garage

This is a proper home in its own right-comfortable, private, and generously proportioned.

RESORT-STYLE POOL & OUTDOOR ENTERTAINING

The outdoor entertainment zone has been thoughtfully positioned between the two homes, creating a central gathering point while maintaining privacy for both residences.

• Sparkling in-ground pool with new solar heating
• Great size patio for lounging and entertaining
• A layout that enhances separation while still connecting the estate's living spaces

It's the perfect place for summer gatherings, family events, or simply unwinding in your own private oasis.

THE SHED & GROUNDS

For those who need space for tools, toys, hobbies, or business equipment, the property includes a huge 18m x 9m shed with Mezzanine-ideal for storage, workshops, or rural pursuits.

The entire block is framed by mature trees, providing Natural privacy, Shade & a peaceful, secluded atmosphere . Fully Auto Retic with Bore & easy use Dosatron Fertilizer system

More Features
• Natural Limestone retaining walls and steps
• Flying Fox for kids
• Solar gate
• Air compressor and Air lines in the shed
• 100,000 L Concreate Water Tank with Water filtration system

The land offers endless potential-whether you envision hobby farming, equestrian use, gardens, or simply enjoying the wide-open space.

A RARE DUAL-RESIDENCE RURAL HOLDING

Properties of this scale, versatility, and quality are seldom offered. With two full-sized homes, a central pool zone, a massive shed, and 2 hectares of usable land, 209 Kargotich Road represents an extraordinary opportunity to secure a lifestyle estate with room for everyone.

TO MAKE AN OFFER OR DOWNLOAD THE COPY OF THE CONTRACT PLEASE USE THIS URL https://prop.ps/l/q8CIHFubOn5O

Property Brochures

  • Property ID 5GURFFB

property map

Property article

Need a conveyancing quote for buying, selling or investing in WA?

For an instant quote get in touch with our team at LJ Hooker Settlements, one of Perth's most trusted settlement agencies, to see how they can assist with your property settlement.

Property Sidebar

For Sale

Inspection Details

Property Details

Property Type House

Land 2 ha

Sidebar Navigation

How can we help?

listing banner

Ask a question

Please send me more information on...

listing item

listing item

listing item

listing item