4 Collins Street, Pennington SA

Property Media

Property mainbar sidebar

Property Mainbar

4 Collins Street, Pennington

Auction | Friday 1st May @ 12pm

3
2
4

Property Mobile Panel

Auction Details

Inspection Details

Please contact
John White
to book an inspection

Property Details

Property Type House

Land 804m²

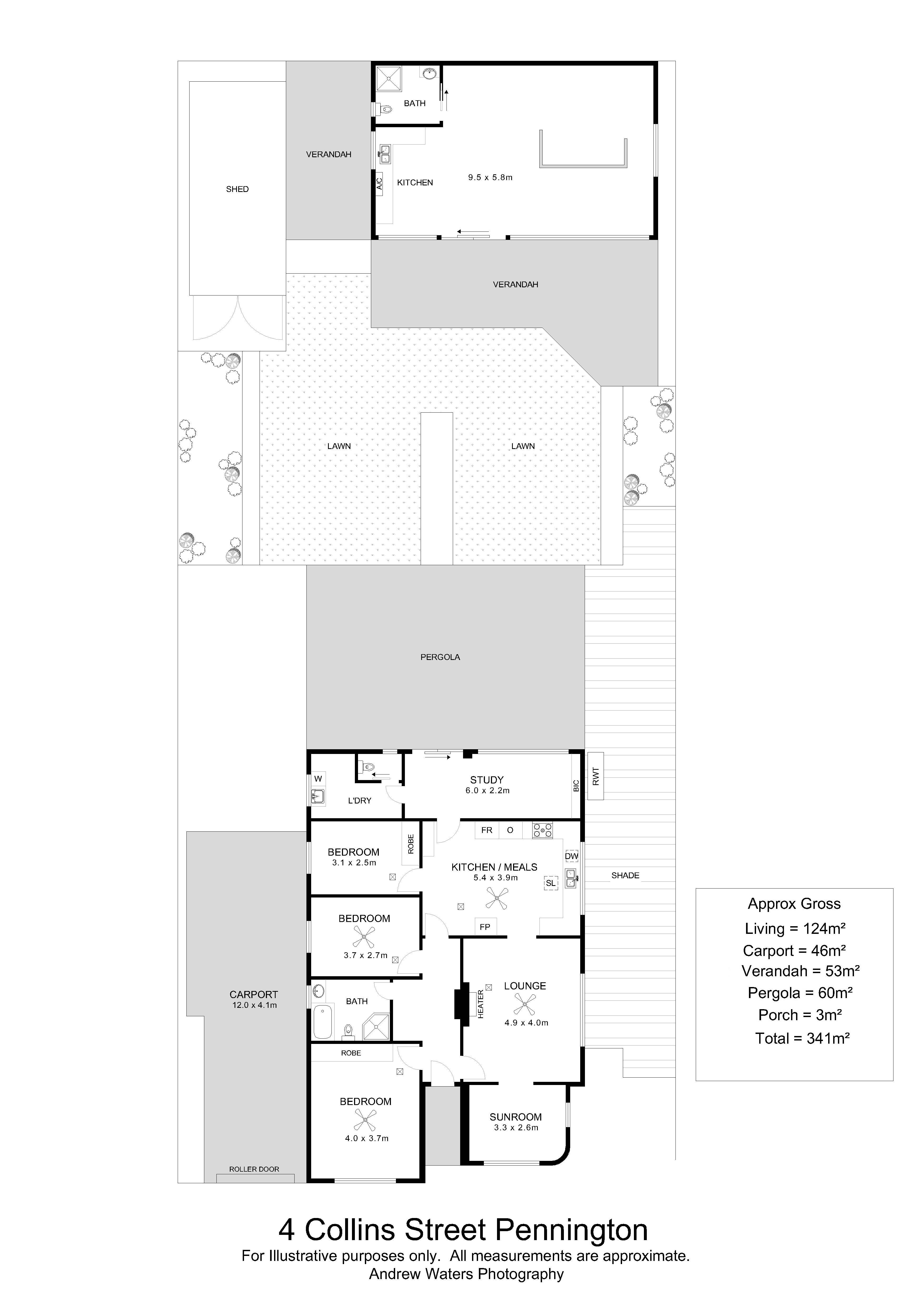
WELL PRESENTED STONE FRONTED FAMILY HOME, WITH DETACHED RUMPUS/GAMES ROOM, ON LARGE BLOCK OF SOME 804sqm APPROX.

This good-sized home offers flexible living areas and is ideal for a family who want room to move.

The eat-in kitchen has a gas hotplate, ample cupboard space and a skylight, and leads to a spacious lounge with gas heating for warmth in the cooler months. The lounge opens to a light and airy sunroom at the front of the home � a sunny room perfect to relax and read a book or the paper.

The home has 3 bedrooms, in addition to the detached room, 2 of which have built in robes. The main bedroom in particular is light and airy. The main bathroom is modern and features a 2nd toilet. In addition, there is a study area at the rear of the home � ideal spot for your laptop.

The home also features a recently installed ducted evaporative air conditioner. It also features high ornate ceilings and some ceiling fans.

Outside is fantastic! You step outside to a huge undercover pergola/entertaining area with blinds to provide protection from the elements. This would be perfect for entertaining family or friends, or just relaxing outdoors.

The detached rumpus/games room is spacious and very impressive. Lots of natural light bursts in and both the kitchen and bathroom are modern and there is paneling which provides privacy for a bed. It also has a brand-new split system reverse cycle air conditioner. This would be ideal for a teenager to live in or would be perfect for your parents who want to be close to the family.

This detached room has its own verandah with an outdoor living area, ideal for a morning coffee or enjoying outdoor meals. This has blinds installed as well.

The home has ample undercover car parking in the form of a carport with paneled automatic roller door, and there's also a garage/workshop.

The gardens are immaculate as is the home itself.

Set in the increasingly popular suburb of Pennington, this home is conveniently located close to local shops, including the St Clair Village Shopping Centre and Armada Arndale, parks, schools and public transport. With easy access to the Port Adelaide precinct, West Lakes shopping and the Adelaide CBD, you'll enjoy a well-connected lifestyle with everything you need within easy reach.

Key Features

- Spacious home with flexible living areas
- Large, eat-in kitchen with a gas cooktop, ample storage and a skylight
- Generous lounge with gas heating, connected to a bright sunroom
- Three good sized bedrooms, two with built-in wardrobes
- Large study at the rear of the home
- Modern bathroom plus additional second WC
- Huge undercover entertaining area with blinds
- Well maintained gardens
- Ample parking including a secure roller door
- Detached rumpus/games room with modern updates including kitchen, bathroom, AC and entertaining area
- Close to St Clair Village Shopping Centre and Armada Arndale

Specifications

Title: Torrens Title
Year built: c1952
Land size: 804sqm (approx)
Council: City of Charles Sturt
Council rates: $1,646.35pa (approx)
ESL: $164.55pa (approx)
SA Water & Sewer supply: $207.68pq (approx)

All information provided including, but not limited to, the property's land size, floorplan, floor size, building age and general property description has been obtained from sources deemed reliable. However, the agent and the vendor cannot guarantee the information is accurate and the agent, and the vendor, does not accept any liability for any errors or oversights. Interested parties should make their own independent enquiries and obtain their own advice regarding the property. Should this property be scheduled for Auction, the Vendor's Statement will be available for perusal by members of the public 3 business days prior to the Auction at the offices of LJ Hooker Mile End at 206a Henley Beach Road, Torrensville and for 30 minutes prior to the Auction at the place which the Auction will be conducted. RLA 242629

Features

  • Air Conditioning
  • Built-In-Robes
  • Carpeted
  • Close to Schools
  • Close to Shops
  • Close to Transport
  • Heating
  • Roller Door Access

Property Brochures

  • RLA 242629
  • Property ID YBVHDM

property map

Property Sidebar

Auction Details

Inspection Details

Please contact
John White
to book an inspection

Property Details

Property Type House

Land 804m²

Sidebar Navigation

How can we help?

listing banner

Ask a question

Please send me more information on...

listing item

listing item

listing item

listing item