1006/305 Murray Street, Perth WA

Property Media

Property mainbar sidebar

Property Mainbar

1006/305 Murray Street, Perth

Please Call

2
1
1

Property Mobile Panel

For Sale

Inspection Details

Please contact
Kalin Lane or Kira Willis
to book an inspection

Property Details

Property Type Unit

House Size 66m²

Land 81m²

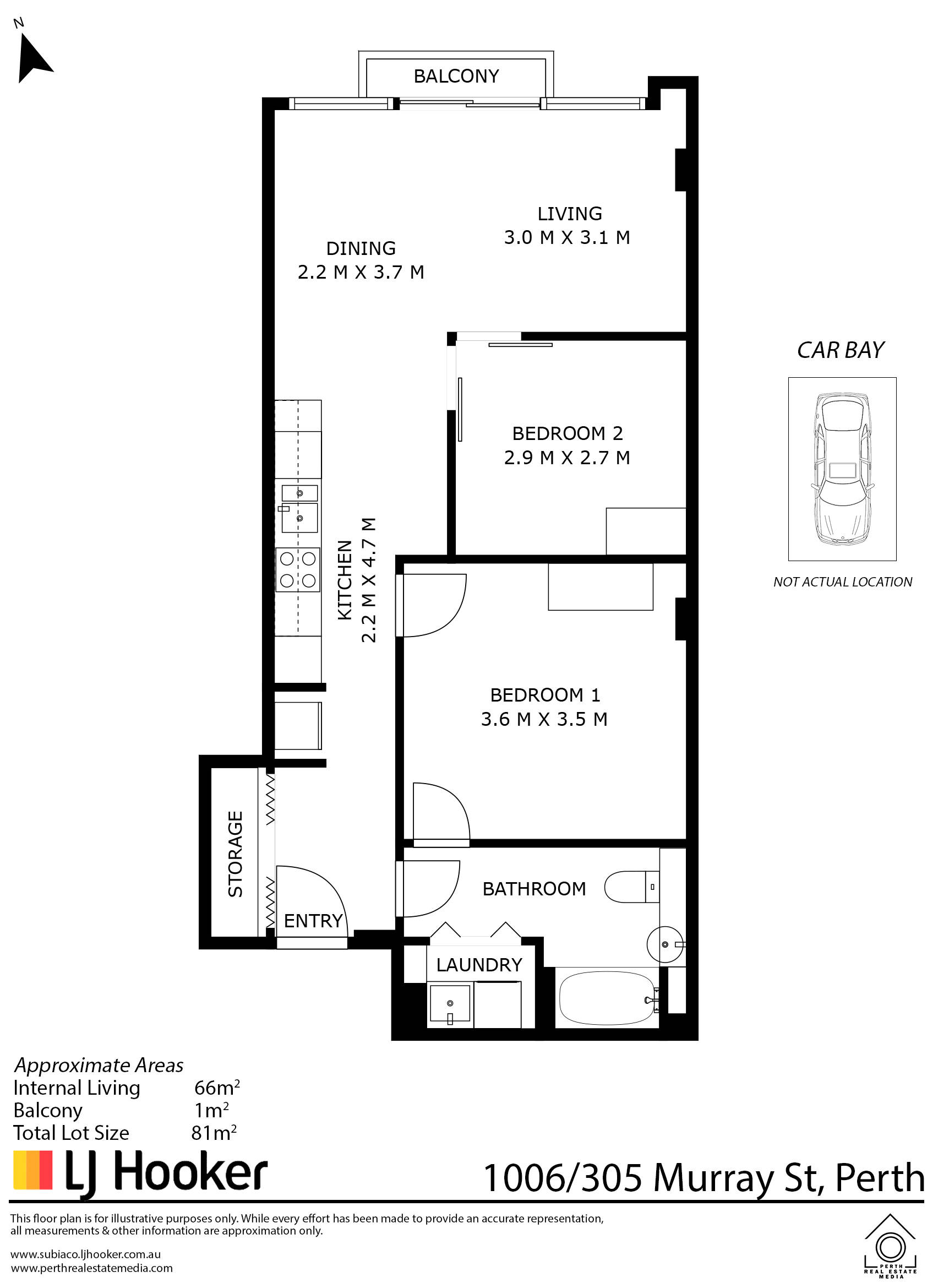
Top-Floor CBD Apartment with Secure Parking

Positioned on the top floor in the heart of the Perth CBD, this tenth-floor apartment delivers sweeping city views, immediate rental return and an unbeatable inner-city lifestyle. Whether you're an investor seeking strong yields or an owner-occupier wanting a secure lock-and-leave base, this is blue-chip buying in a premium location.

Set above the Oaks Perth Hotel, access is via the 24/7 reception, with some of the city's most prestigious retail directly at your doorstep including Gucci, Cartier, Rolex and Louis Vuitton. Convenience shopping is just 100m away, along with the Perth Underground Station, placing the entire metropolitan area within easy reach.

The thoughtfully designed layout features two bedrooms, an open-plan kitchen, living and dining zone, and a full-height window wall that captures impressive CBD views and natural light. Secure access, lift entry and professional building management add to the appeal, making it ideal for both long-term investment and effortless city living.

Currently tenanted at $775 per week until 30 September 2026, this property offers an immediate and secure rental return from day one.

Features include:
• Top-floor position with elevated city views
• 2 Bedrooms
• 1 Bathroom with laundry
• 1 Secure undercover car bay
• Open-plan kitchen, living and dining
• Balcony with city outlook
• Split-system air-conditioning
• Secure complex with lift and intercom access
• Positioned in a highly connected CBD precinct close to retail, dining, public transport, Elizabeth Quay and the upcoming ECU City Campus

Outgoings:
Water Rates: $1,176.67 per annum approx.
Council Rates: $1,687.20 per annum approx.
Strata Admin Fund: $936.17 per quarter approx.
Strata Reserve Fund: $633.02 per quarter approx.

For further information, please contact Kalin or Kira.

Disclaimer: The information contained herein has been provided by the vendor and/or other third parties. While all care has been taken to ensure the accuracy of this information, LJ Hooker Subiaco does not accept responsibility for any errors, omissions or misstatements. Interested parties should make their own enquiries to verify the information provided.

Features

  • Air Conditioning
  • Car Parking - Basement
  • Carpeted
  • City Views
  • Close to Schools
  • Close to Shops
  • Close to Transport

Property Brochures

  • Property ID 8AMHNF

property map

Property article

Need a conveyancing quote for buying, selling or investing in WA?

For an instant quote get in touch with our team at LJ Hooker Settlements, one of Perth's most trusted settlement agencies, to see how they can assist with your property settlement.

Property Sidebar

For Sale

Inspection Details

Please contact
Kalin Lane or Kira Willis
to book an inspection

Property Details

Property Type Unit

House Size 66m²

Land 81m²

Sidebar Navigation

How can we help?

listing banner

Ask a question

Please send me more information on...

listing item

listing item

listing item

listing item