215 Darley Road, Randwick NSW

Property Media

Property mainbar sidebar

Property Mainbar

215 Darley Road, Randwick

Sold For $4,700,000

5
3
2

Property Mobile Panel

For Sale

Property Details

Property Type House

Land 278m²

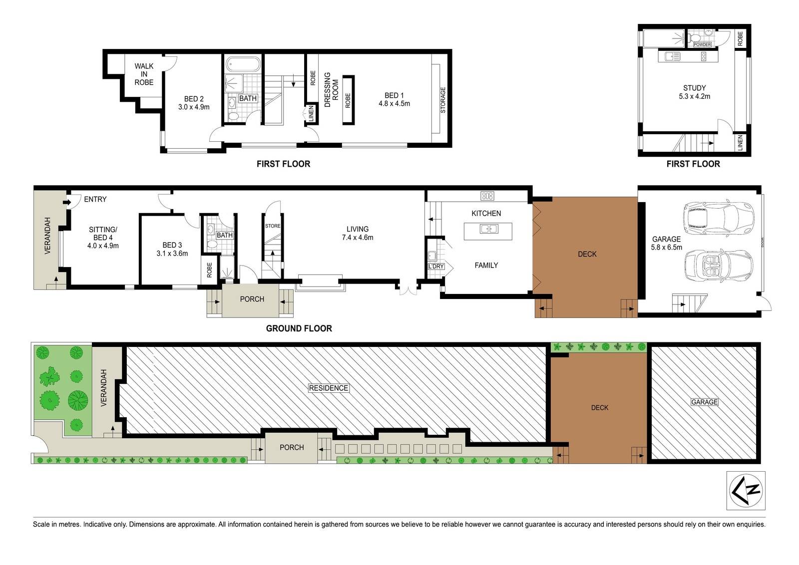
Designer Residence Perfect for Family Living and Entertaining

Situated for lifestyle right across from Queens Park, this striking architectural residence offers an idyllic family sanctuary designed for modern comfort and functionality. With impressive proportions that cater to effortless living and entertaining, the home features elegant formal lounge and dining areas, perfect for hosting gatherings.

The gourmet stone kitchen is a chef's delight, equipped with a Smeg six-burner gas cooktop, and bi-fold doors open to a private sun-drenched courtyard, enhancing the indoor-outdoor flow. The unbeatable location places you just a short stroll from Frenchmans Road, with its array of shops, cafes, and prestigious schools.

Additional features include a second kitchen in a separate self-contained studio, an alfresco entertaining area with a stunning sandstone feature wall, and well-sized bedrooms with built-in robes. Stylish designer bathrooms and an internal laundry add convenience, while upstairs picture windows frame breathtaking city skyline views. This property also offers excellent guest or Airbnb potential for passive income and rear lane access to an oversized remote double garage, making it the perfect blend of comfort and opportunity.

Property Brochures

  • Property ID 20AHYY

property map

Property Sidebar

For Sale

Property Details

Property Type House

Land 278m²

Sidebar Navigation

How can we help?

listing banner

Ask a question

Please send me more information on...

listing item

listing item

listing item

listing item