3 Lane Street, Richmond SA

Property Media

Property mainbar sidebar

Property Mainbar

3 Lane Street, Richmond

SOLD

3
2
7

Property Mobile Panel

For Sale

Property Details

Property Type House

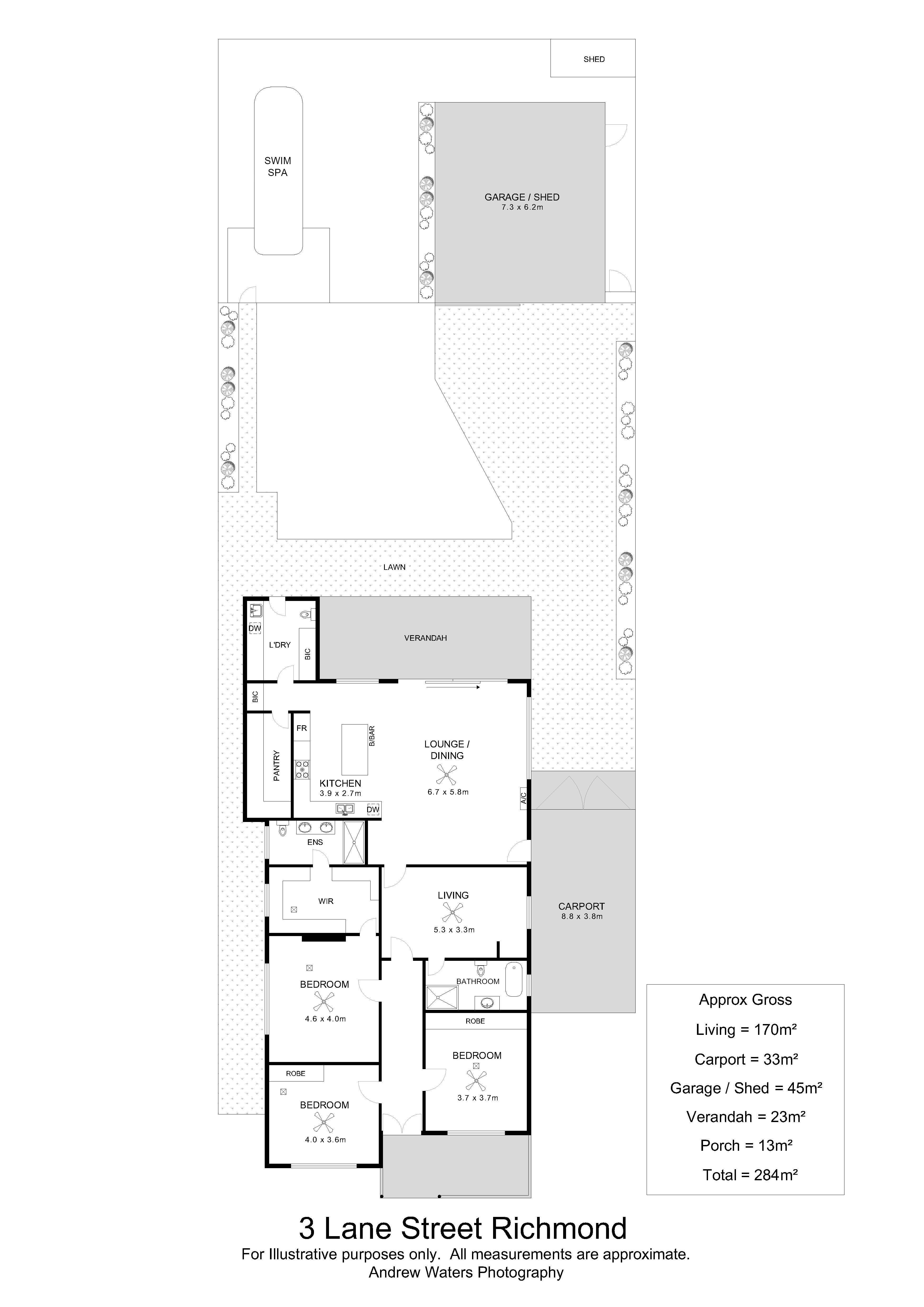
Land 766m²

A Rare & Bespoke Renovation � An Elegant City-Fringe Offering

Gracefully positioned within the ever-coveted suburb of Richmond, this exquisite stone-fronted bungalow has been masterfully reimagined, uniting architectural sophistication with refined modern comfort - all moments from the Adelaide CBD.

This is far more than a renovation; it is a considered expression of design, lifestyle and enduring quality.

From its captivating street presence, the preserved character fa�ade and ornate 3-metre ceilings pay homage to the home's heritage. Beyond the threshold, a breathtaking architectural extension unfolds - crowned by a dramatic sloped ceiling that draws abundant northern light into the living domain, seamlessly integrating indoor elegance with the outdoor entertaining sanctuary.

Designed to impress & crafted to endure, with captivating raked ceilings. At the heart of the home lies an expansive open-plan lounge and dining space - a setting of scale and warmth.

The kitchen is both beautiful and functional, appointed with Caesarstone benchtops, a Bosch dishwasher, Westinghouse induction cooktop and oven, smart Electrolux rangehood, Olivieri double sink with quality tapware, integrated bins, and a generous walk-in pantry.

Glazed sliding doors open effortlessly to the verandah, creating a fluid connection between interior refinement and alfresco enjoyment beneath the soaring ceiling line.

A secondary living room offers welcome versatility - ideal as a private retreat, media lounge or refined sitting room - while the thoughtfully composed floorplan ensures abundant storage throughout.

Refined accommodation featuring three generously proportioned bedrooms provide comfort and tranquillity, each complete with built-in robes and ceiling fans. The master suite is privately appointed with a walk-in robe and elegant ensuite, while the central bathroom services the home with understated style.

Intelligent sustainability is made possible through the architecturally designed extension, which achieves energy efficiency and incorporates double-glazed windows, a 6.6kW solar system (18 panels), and 3-phase power - including to the rear shed. Fujitsu ducted heating and cooling, complemented by an additional split system to the extension, ensure year-round comfort with remarkable efficiency.

Every inclusion has been carefully selected to deliver performance without compromise.

Resort-Inspired outdoor living - Beyond the living spaces, a private oasis awaits. A Vortex Aqualap swim spa, complete with multiple swim jets and ambient mood lighting, offers both rejuvenation and recreation. The north-facing rear garden captures natural light throughout the day, while fully fenced grounds and an automated front gate provide privacy and security.

A substantial rear garage/shed with 3-phase power comfortably accommodates two vehicles, complemented by an oversized carport - ideal for collectors, trades or additional storage.

Richmond's prized city-fringe position places you within effortless reach of the Adelaide CBD, pristine coastline, esteemed schooling, cafés and convenient transport links. It is a location where timeless charm meets modern accessibility - and opportunities of this calibre are rarely secured.

This is more than a residence, it is a bespoke architectural sanctuary - where heritage character, sustainable innovation and resort-style luxury exist in perfect harmony.

An offering of distinction. One not to be missed.

Key Features

- Beautifully renovated stone-fronted bungalow with architectural extension
- Prime city-fringe position in Richmond
- Soaring 3-metre ornate ceilings to original home
- Striking sloped-ceiling extension with abundant northern light
- Expansive open-plan living and dining area
- Designer kitchen with Caesarstone benchtops
- Bosch dishwasher, Westinghouse induction cooktop & oven
- Smart Electrolux rangehood & Olivieri double sink
- Integrated bins and generous walk-in pantry
- Three spacious bedrooms with built-in robes & ceiling fans
- Master suite with walk-in robe and private ensuite
- Secondary living room for added flexibility
- 5-star energy efficient rated extension
- Double-glazed windows
- 6.6kW solar system (18 panels)
- 3-phase power including to rear shed
- Fujitsu ducted heating & cooling plus split system to extension
- North-facing rear yard
- Vortex Aqualap swim spa with swim jets & mood lighting
- Fully fenced grounds with automated front gate
- Large rear garage/shed accommodating two vehicles
- Oversized carport with additional off-street parking

Specifications

Title: Torrens Title
Year built: c1926
Land size: 766sqm (approx)
Council: City of West Torrens
Council rates: $1,662.60pa (approx)
ESL: $165.90pa (approx)
SA Water & Sewer supply: $209.15pq (approx)

All information provided including, but not limited to, the property's land size, floorplan, floor size, building age and general property description has been obtained from sources deemed reliable. However, the agent and the vendor cannot guarantee the information is accurate and the agent, and the vendor, does not accept any liability for any errors or oversights. Interested parties should make their own independent enquiries and obtain their own advice regarding the property. Should this property be scheduled for Auction, the Vendor's Statement will be available for perusal by members of the public 3 business days prior to the Auction at the offices of LJ Hooker Mile End at 206a Henley Beach Road, Torrensville and for 30 minutes prior to the Auction at the place which the Auction will be conducted. RLA 242629

Features

  • Ensuite
  • Air Conditioning
  • Built-In-Robes
  • Close to Schools
  • Close to Shops
  • Close to Transport
  • Pool
  • Spa
  • Window Treatments

Property Brochures

  • RLA 242629
  • Property ID Y8WHDM

property map

Property Sidebar

For Sale

Property Details

Property Type House

Land 766m²

Sidebar Navigation

How can we help?

listing banner

Ask a question

Please send me more information on...

listing item

listing item

listing item

listing item