1-4/4 Ora Court, Salisbury North SA

Property Media

Property mainbar sidebar

Property Mainbar

1-4/4 Ora Court, Salisbury North

For Sale $790,000 - $860,000

3
2
2

Property Mobile Panel

For Sale

Inspection Details

Property Details

Property Type House

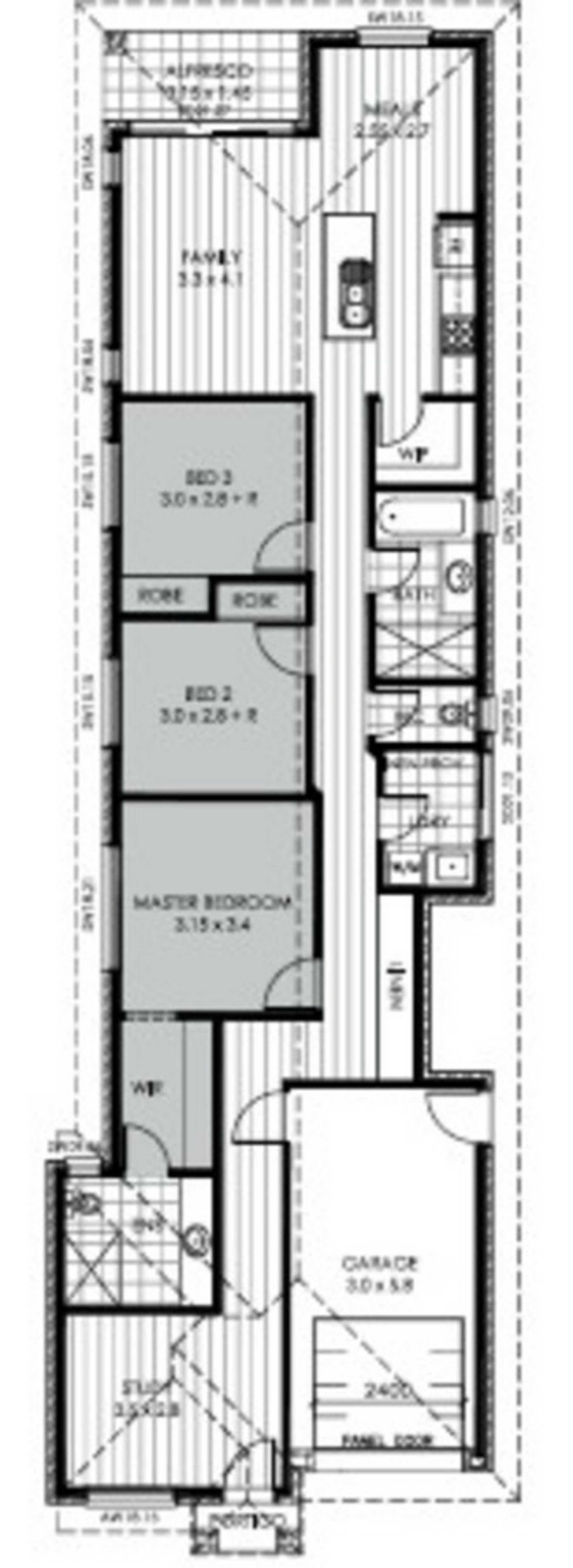
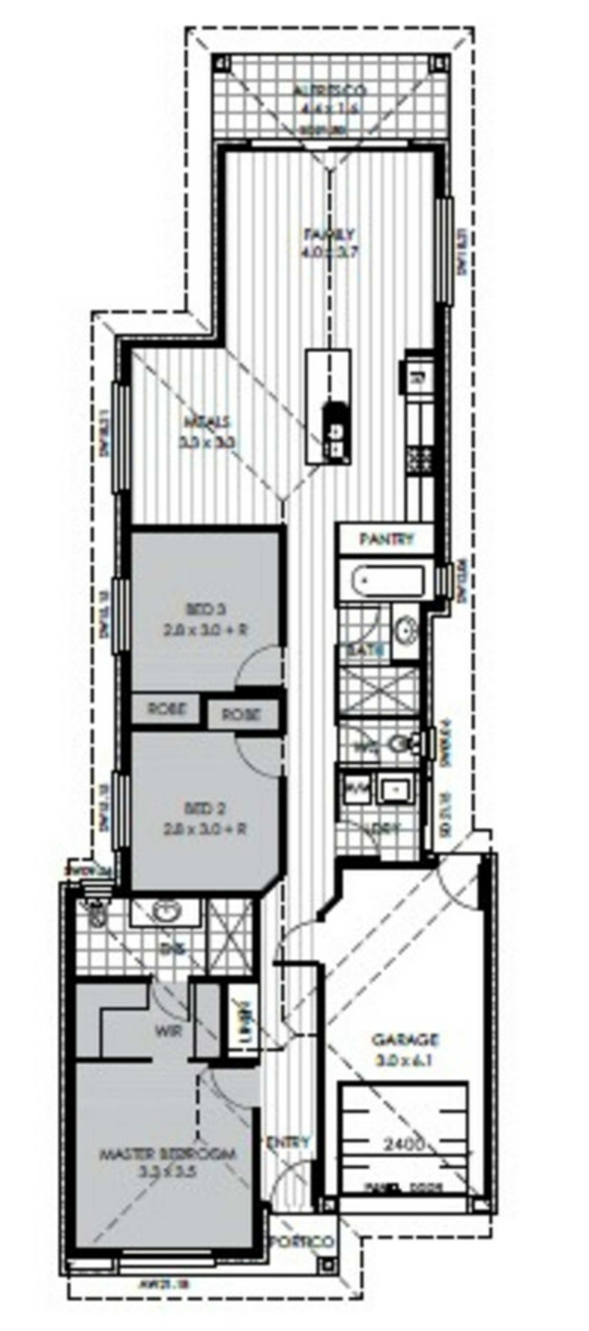
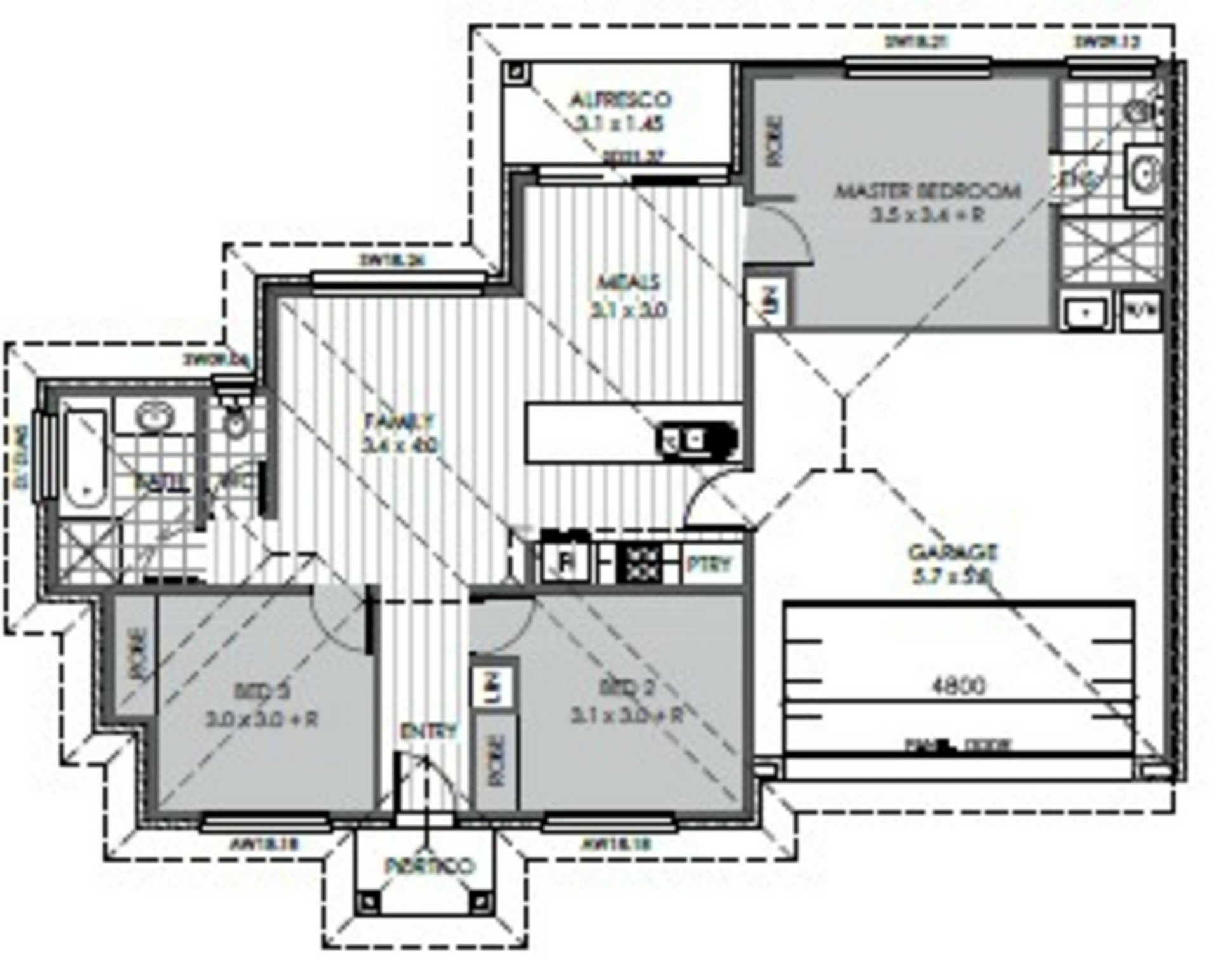
Affordable Brand-New Living at 4 Ora Court, Salisbury North

First home buyers and investors, take note! This is your chance to secure one of these stylish, architecturally designed homes in a rapidly growing pocket of Salisbury North.

Offering a selection of thoughtfully designed house & land packages, including one 3-bedroom home with a double garage, plus additional homes featuring 3 bedrooms with single garages under the main roof, this development has been carefully planned to maximise space, comfort, and modern living.

Each home showcases contemporary design, quality finishes, and a practical layout suited to today's lifestyle.

Key Features:
•Affordable brand new 3 bedroom fully detached homes, all street-facing.
•One home with a double garage, plus others with single garages
•Architecturally designed for space, style, and comfort
•All the 4 homes will feature 2700 ceilings.
•Secure garage with additional storage space
•Ducted reverse cycle air-conditioning for year-round comfort
•Stone Benchtops on Lot: 1 in Kitchen, LED Down Lights, Dishwasher.
•Other Inclusions: concrete driveway & pathways, front & rear landscaping,
and side gate access.
•Additional inclusions such as rainwater tank, letterbox & clothesline
•Low-maintenance living, perfect for busy lifestyles

Perfectly positioned in a quiet and convenient location, you'll enjoy proximity to local schools, shopping centres, parks, and public transport-making everyday living easy.
Don't miss this opportunity to be part of an exciting new development offering both convenience and a peaceful suburban lifestyle in one of Adelaide's fastest-growing areas.
Contact the selling agent today for a full list of inclusions and to secure your interest.

Please note: Images are for illustration purposes only

For more information on this property, please call Dominic Mammone on 0411 478 167


Disclaimer:
Any prospective purchaser should not rely solely on 3rd party information providers to confirm the details of this property or land and are advised to enquire directly with the agent in order to review the certificate of title and local government details provided with the completed Form 1 vendor statement. All land sizes quoted are an approximation only and at the purchasers discretion to confirm. All information contained herein is gathered from sources we consider to be reliable. However, we cannot guarantee or give any warranty about the information provided. Interested parties must solely rely on their own enquiries.

RLA 215339

Property Brochures

  • RLA 215339
  • Property ID JU5H67

property map

Property Sidebar

For Sale

Inspection Details

Property Details

Property Type House

Sidebar Navigation

How can we help?

listing banner

Ask a question

Please send me more information on...

listing item

listing item

listing item

listing item