33 Banks Street, Salisbury SA

Property Media

Property mainbar sidebar

Property Mainbar

33 Banks Street, Salisbury

SOLD

3
1
6

Property Mobile Panel

For Sale

Property Details

Property Type House

SOLD $360,000!

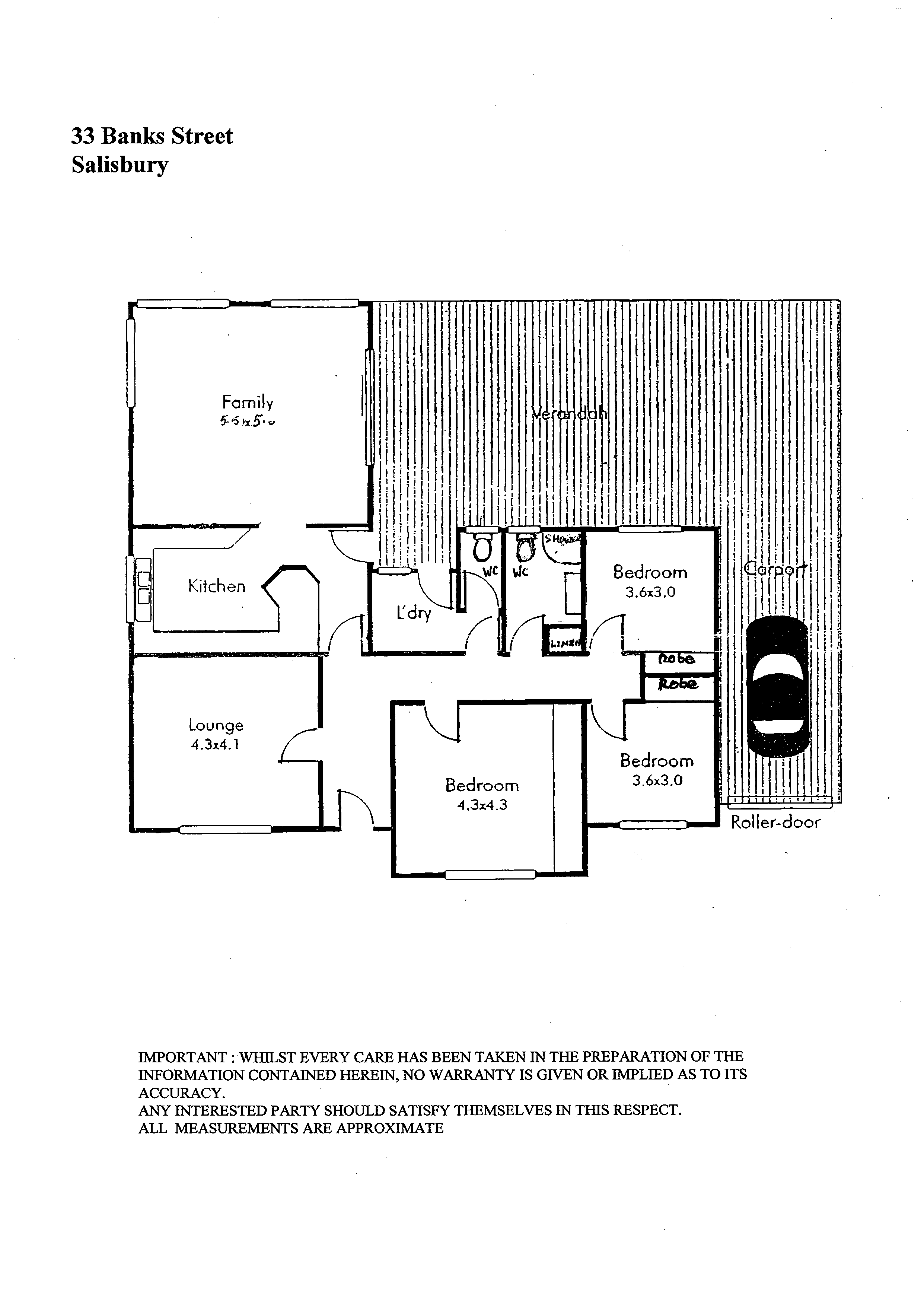
Lovely solid brick home offering three bedrooms of good size. Main with huge timber/mirror robes.
Large kitchen with gas cooking, pantry and storage space.
Updated fully tiled bathroom with second toilet. Fully tiled large laundry area.

Massive 5.5m X 5.0m approx family room with downlights and split system r/c air conditioner.
Another lounge room at front of home currently disposed as fourth bedroom.
Ducted Evaporative air conditioning through out and split system reverse cycle air conditioner in family.
Gas heating to front lounge room.

Outside under cover is third living area with timber decking and blinds, with built in furniture.
Double width drive way and roller door. Ample shedding.

Security roller shutters (battery operated).
All set on 656sqm approx block. Even has its own white picket fence.

Walking distance to Parabanks and Salisbury Interchange.

Be Quick!

Contact Agent

RLA 235 270

Property Brochures

  • RLA 287 134
  • Property ID V2HRU

property map

Property Sidebar

For Sale

Property Details

Property Type House

Sidebar Navigation

How can we help?

listing banner
LJ Hooker Prospect

Call (08) 8269 4645

Ask a question

Please send me more information on...

listing item

listing item

listing item

listing item