7 Tulipwood Place, Stretton QLD

Property Media

Property mainbar sidebar

Property Mainbar

7 Tulipwood Place, Stretton

For Sale

5
3
2

Property Mobile Panel

For Sale

Inspection Details

Please contact
Emily Xiong
to book an inspection

Property Details

Property Type House

Land 733m²

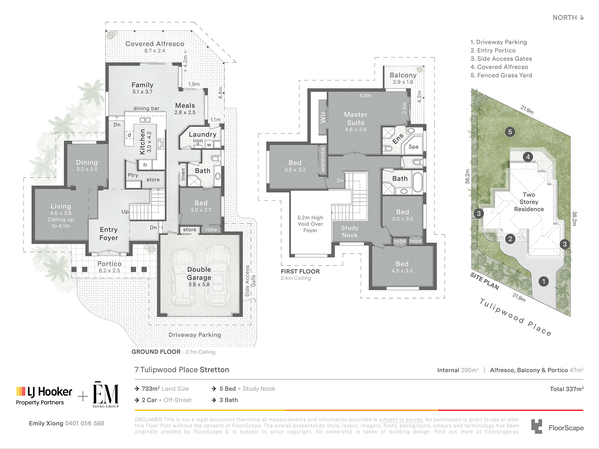
An Elevated Family Sanctuary Above the Stretton Treetops

In one of Stretton's most peaceful and tightly held cul-de-sacs, this impressive two-storey residence delivers a refined family lifestyle defined by generous proportions, tranquil outlooks, and timeless comfort.

Set on a sprawling 733m2 block, the home blends elegant formal spaces with relaxed everyday living, all framed by leafy district views and a beautiful sense of privacy.

Top 5 Features at a Glance:
1. Generous 733m2 block in a quiet Stretton Gardens cul-de-sac.
2. Elegant formal lounge and dining with decorative cornices and feature lighting.
3. Multiple living zones and spacious kitchen with stone benches & walk-in pantry.
4. Private master retreat with walk-in robe, spa ensuite and balcony with district views.
5. Coveted location near buses, childcare, shops and Calamvale Community College.

Thoughtfully designed for growing families, the residence unfolds across multiple living zones, with soaring ceilings, expansive windows, and warm neutral finishes creating an atmosphere of quiet sophistication throughout.

Upon entry, a striking double-height foyer rises beneath an elegant chandelier, while a sweeping staircase and upper gallery create a dramatic architectural centrepiece. Bathed in natural light from oversized windows, the entry flows effortlessly into the home's refined formal lounge - an inviting space for quiet conversation or elegant entertaining.

Moving deeper into the home, a series of interconnected living and dining zones offer flexibility for everyday life. The formal dining room provides a beautiful setting for special occasions, while the open family and meals areas form the relaxed heart of the home.

At the centre, the spacious kitchen is designed for both functionality and connection. Wrap-around stone benchtops provide generous preparation space, complemented by a walk-in pantry, quality appliances, and a dedicated dining bar that overlooks the sunken lounge area.

Large sliding doors extend the living spaces out to a covered alfresco entertaining area that wraps around the rear of the home. Sheltered and spacious, it creates a natural extension of the indoor living zones and overlooks the expansive fenced backyard - a private outdoor haven where children and pets can play freely.

Upstairs, the accommodation wing offers exceptional comfort and space. The master suite opens to a private balcony where elevated district views stretch across the treetops and rooftops beyond. Complete with a walk-in robe and spa ensuite, it offers a peaceful sanctuary at the end of the day.

Four additional bedrooms provide ample flexibility for families, while a convenient downstairs guest bedroom enjoys access to a two-way bathroom - ideal for extended family or visitors. An upstairs study nook adds further practicality for work, study, or quiet reading.

Beyond the home itself, the location offers exceptional convenience within one of Brisbane's most desirable southern suburbs. Families will appreciate being just minutes from renowned Stretton College, with Sunnybank Hills Shoppingtown, Calamvale Community College, and local childcare centres all close by. Easy access to the Gateway Motorway ensures seamless connectivity to Brisbane and the Gold Coast, while the surrounding greenery of Karawatha Forest provides beautiful natural escapes nearby.

Peaceful, spacious, and beautifully positioned, this elegant family residence presents a rare opportunity to secure a refined lifestyle in one of Stretton's most sought-after pockets.

Contact Emily Xiong today to arrange your inspection.

All information contained herein is gathered from sources we consider to be reliable. However, we cannot guarantee or give any warranty about the information provided and interested parties must solely rely on their own enquiries.

Asia-Pacific Group (Australia) Pty Ltd with Sunnybank Districts P/L T/A LJ Hooker Property Partners
ABN 39 831 978 227 / 21 107 068 020

Features

  • Air Conditioning
  • Remote Garage
  • Balcony
  • Built-In-Robes
  • Secure Parking

Property Brochures

  • Property ID B429F4R

property map

Property Sidebar

For Sale

Inspection Details

Please contact
Emily Xiong
to book an inspection

Property Details

Property Type House

Land 733m²

Sidebar Navigation

How can we help?

listing banner

Ask a question

Please send me more information on...

listing item

listing item

listing item

listing item