3 Cubagee Court, Tennant Creek NT

Property Media

Property mainbar sidebar

Property Mainbar

3 Cubagee Court, Tennant Creek

Sold For $445,000

4
2
2

Property Mobile Panel

For Sale

Property Details

Property Type House

Land 1170m²

Stylish Retreat with Versatile Space and Investment Potential

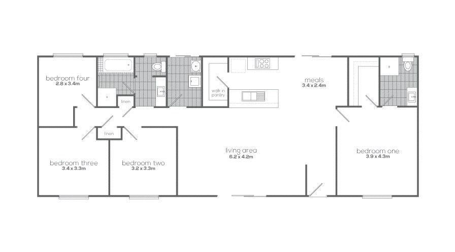
Discover your dream home in a serene cul-de-sac, where this beautifully presented residence awaits. Surrounded by landscaped gardens, the property welcomes you with a spacious driveway and secure double gates leading to a fully fenced oasis. Step onto the charming decked front verandah, setting the tone for the home’s open-plan layout, featuring elegant timber floors and a calming neutral palette.

The heart of the home is the stunning kitchen, designed with sleek modern finishes and a generous breakfast bar perfect for family gatherings. A large walk-in pantry provides ample storage for all your culinary needs, making it ideal for a busy household.

The master suite is a retreat of its own, boasting a walk-in wardrobe, contemporary ensuite, and abundant natural light, while the remaining bedrooms are thoughtfully positioned for privacy and tranquility.

At the other end of the home, you'll find three additional spacious bedrooms, a well-appointed laundry, and a centrally located three-way bathroom designed for family convenience. Step outside to the rear verandah, a shaded haven that stretches the length of the house —perfect for entertaining or relaxing.

A highlight of this property is the massive double garage, complete with a kitchenette, shower, and toilet, offering versatile space for storage, car parking, or even a workshop. With driveway access from the front, this area is perfect for parking or direct entry into the shed/granny flat.

This property offers an outstanding investment opportunity or your dream family home. Arrange your inspection today and experience all this exceptional property has to offer.

Features

  • Toilets (3)

Property Brochures

  • Property ID 2CE2FD5

property map

Property Sidebar

For Sale

Property Details

Property Type House

Land 1170m²

Sidebar Navigation

How can we help?

listing banner

Ask a question

Please send me more information on...

listing item

listing item

listing item

listing item