23 Lyrebird Way, Thornlie WA

Property Media

Property mainbar sidebar

Property Mainbar

23 Lyrebird Way, Thornlie

Please Call

4
2
2

Property Mobile Panel

For Sale

Inspection Details

Please contact
Nathan Frisina
to book an inspection

Property Details

Property Type House

Land 690m²

Invest in Your Future

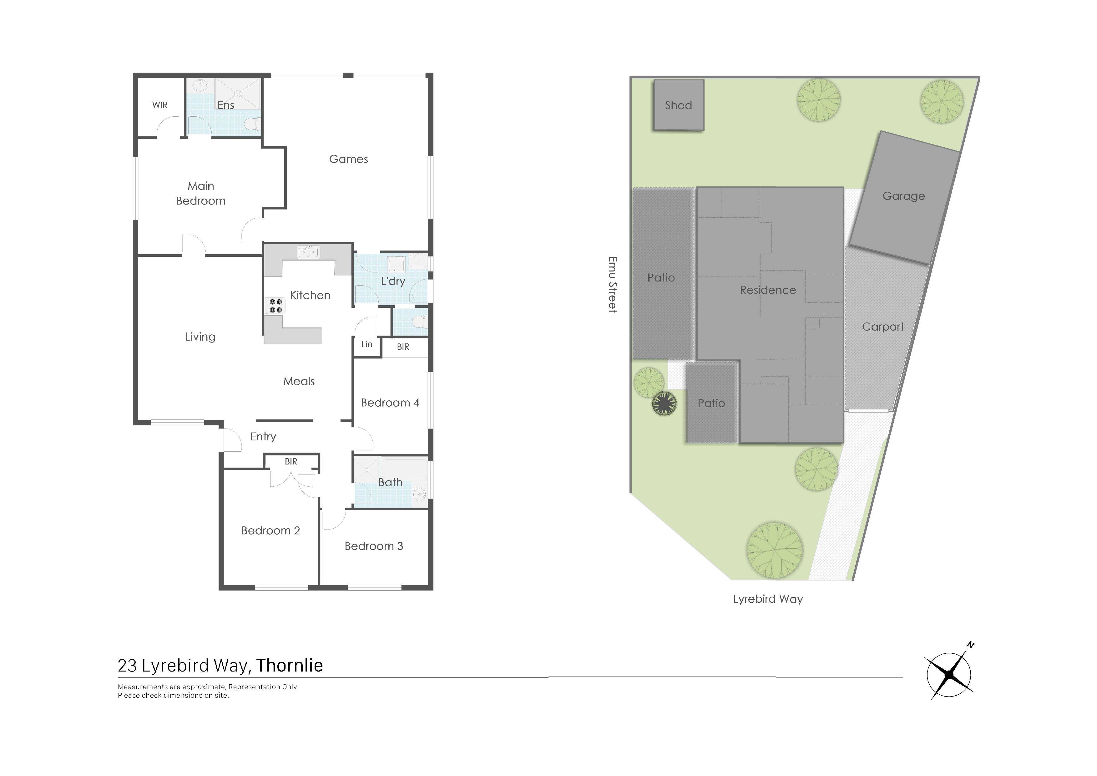
Offering the best of both worlds, this four-bedroom, two-bathroom home combines comfortable family living with outstanding future development potential.

Positioned on a prime corner block with R60 zoning, the property presents an excellent opportunity for a future street-front development (subject to Council and WAPC approval), making it a smart choice for owner-occupiers, investors, and developers alike.

The home itself is well suited to a growing family, featuring multiple living areas including an open-plan kitchen, meals, and family zone. A separate enclosed patio provides the perfect space for kids, a playroom, or an additional living area.

The kitchen offers generous bench space, a stainless-steel rangehood, and a dishwasher, while the main living area is finished with quality flooring, split-system air conditioning, and a wood heater for year-round comfort.
The master bedroom includes a walk-in robe and private ensuite, while additional features include ducted evaporative air conditioning and security screens throughout.

Outside, the property continues to impress with:
Carport accommodating two vehicles (tandem parking)
Brick workshop for storage or projects
Lawn area ideal for children to play
Pergola with shade cloth for outdoor entertaining
Convenient side access
Solar Panels
Solar Hot Water System

Located in a highly accessible pocket, the home is within walking distance to Thornlie Train Station, offers easy access to Roe Highway, and is just approximately 4.2km from Westfield Carousel.

Properties that successfully combine family comfort with genuine development potential are increasingly rare.

Make your enquiry today before this opportunity is missed.

•• Please note the Aerial Photo is for illustration purposes showing approximate boundaries.

Disclaimer: All information contained therein is gathered from relevant third parties sources. We cannot guarantee or give any warranty about the information provided. Interested parties must rely solely on their own enquiries.

Features

  • Ensuite
  • Split System AC
  • Evaporative Cooling
  • Outdoor Entertaining
  • Workshop
  • Dishwasher
  • Close to Transport

Property Brochures

  • Property ID 9G9HA2

property map

Property article

Need a conveyancing quote for buying, selling or investing in WA?

For an instant quote get in touch with our team at LJ Hooker Settlements, one of Perth's most trusted settlement agencies, to see how they can assist with your property settlement.

Property Sidebar

For Sale

Inspection Details

Please contact
Nathan Frisina
to book an inspection

Property Details

Property Type House

Land 690m²

Sidebar Navigation

How can we help?

listing banner

Ask a question

Please send me more information on...

listing item

listing item

listing item

listing item