24 Danby Street, Torrensville SA

Property Media

Property mainbar sidebar

Property Mainbar

24 Danby Street, Torrensville

Sold For $1,310,000

3
1
3

Property Mobile Panel

For Sale

Property Details

Property Type House

Land 715m²

Classic Character Home with Rare Rear Laneway Access

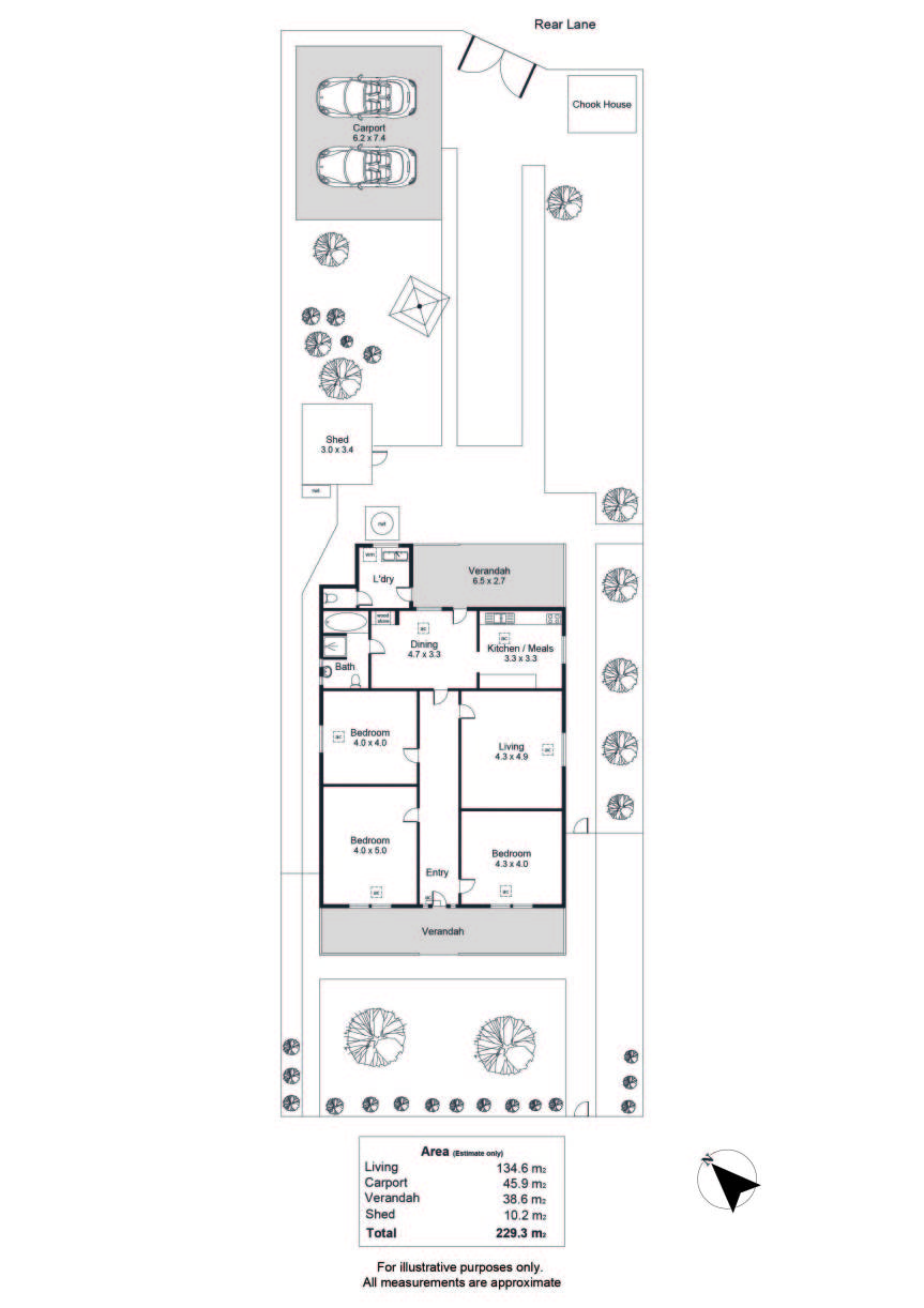
Positioned on a generous 715sqm• allotment with rear laneway access, this charming character home presents endless opportunities. Whether you choose to move straight in, restore and renovate, extend to suit your lifestyle, or redevelop and build your dream residence (STPC), the possibilities are abundant.

Showcasing timeless character features, the home welcomes you with soaring ceilings and spacious proportions At the front, three generously sized bedrooms and a light-filled living room retain their period charm. Towards the rear, the functional eat-in kitchen provides ample storage and adjoins a dining area, with the bathroom including a separate bathtub. From the back verandah, you'll find the laundry and an additional WC.

Outdoors, a wide undercover verandah opens onto the expansive garden, offering scope for creative landscaping or future enhancements. A garden shed provides handy storage, while rear-lane access leads to an open carport.

Situated on the fringe of the city, the location combines lifestyle and convenience. Just a short stroll to beloved cafés such as Pixie and the Hawk, a vibrant mix of multicultural dining, and everyday essentials including Drakes Foodland. Less than 5km to the CBD, with excellent public transport links along Henley Beach Road. Families will also appreciate proximity to quality schooling, including Torrensville Primary, and zoning for the highly regarded Adelaide High and Adelaide Botanic High School.

Key Features

- Three generous bedrooms
- Central lounge room
- Eat in kitchen with ample storage and dining room adjacent
- Bathroom includes a separate bathtub
- Laundry and second WC accessible from the rear verandah
- Undercover entertaining area
- Spacious gardens with room for growth, and a garden shed
- Off-street Parking accessible from a rear lane
- Reverse Cycle Ducted Air Conditioning

Specifications

Title: Torrens Title
Year built: c1910
Land size: 715sqm (approx)
Site dimensions: 15.24m x 46.93m (approx)
Council: City of West Torrens
Council rates: $2,271.55pa (approx)
ESL: $208.35pa (approx)
SA Water & Sewer supply: $255.61pq (approx)

All information provided including, but not limited to, the property's land size, floorplan, floor size, building age and general property description has been obtained from sources deemed reliable. However, the agent and the vendor cannot guarantee the information is accurate and the agent, and the vendor, does not accept any liability for any errors or oversights. Interested parties should make their own independent enquiries and obtain their own advice regarding the property. Should this property be scheduled for Auction, the Vendor's Statement will be available for perusal by members of the public 3 business days prior to the Auction at the offices of LJ Hooker Mile End at 206a Henley Beach Road, Torrensville and for 30 minutes prior to the Auction at the place which the Auction will be conducted. RLA 242629

Features

  • Close to Schools
  • Close to Shops
  • Close to Transport
  • Window Treatments

Property Brochures

  • RLA 242629
  • Property ID XVZHDM

property map

Property Sidebar

For Sale

Property Details

Property Type House

Land 715m²

Sidebar Navigation

How can we help?

listing banner

Ask a question

Please send me more information on...

listing item

listing item

listing item

listing item