37 Frederick Street, Welland SA

Property Media

Property mainbar sidebar

Property Mainbar

37 Frederick Street, Welland

Auction | Saturday 2nd May @ 3pm

4
1
7

Property Mobile Panel

Auction Details

Inspection Details

Property Details

Property Type House

Land 1136m²

A Rare Gem on the City Fringe � Grand Symmetrical Villa on 1,136sqm Allotment

Welcome to a truly exceptional offering-where timeless character, generous proportions, and an unbeatable location come together in perfect harmony.

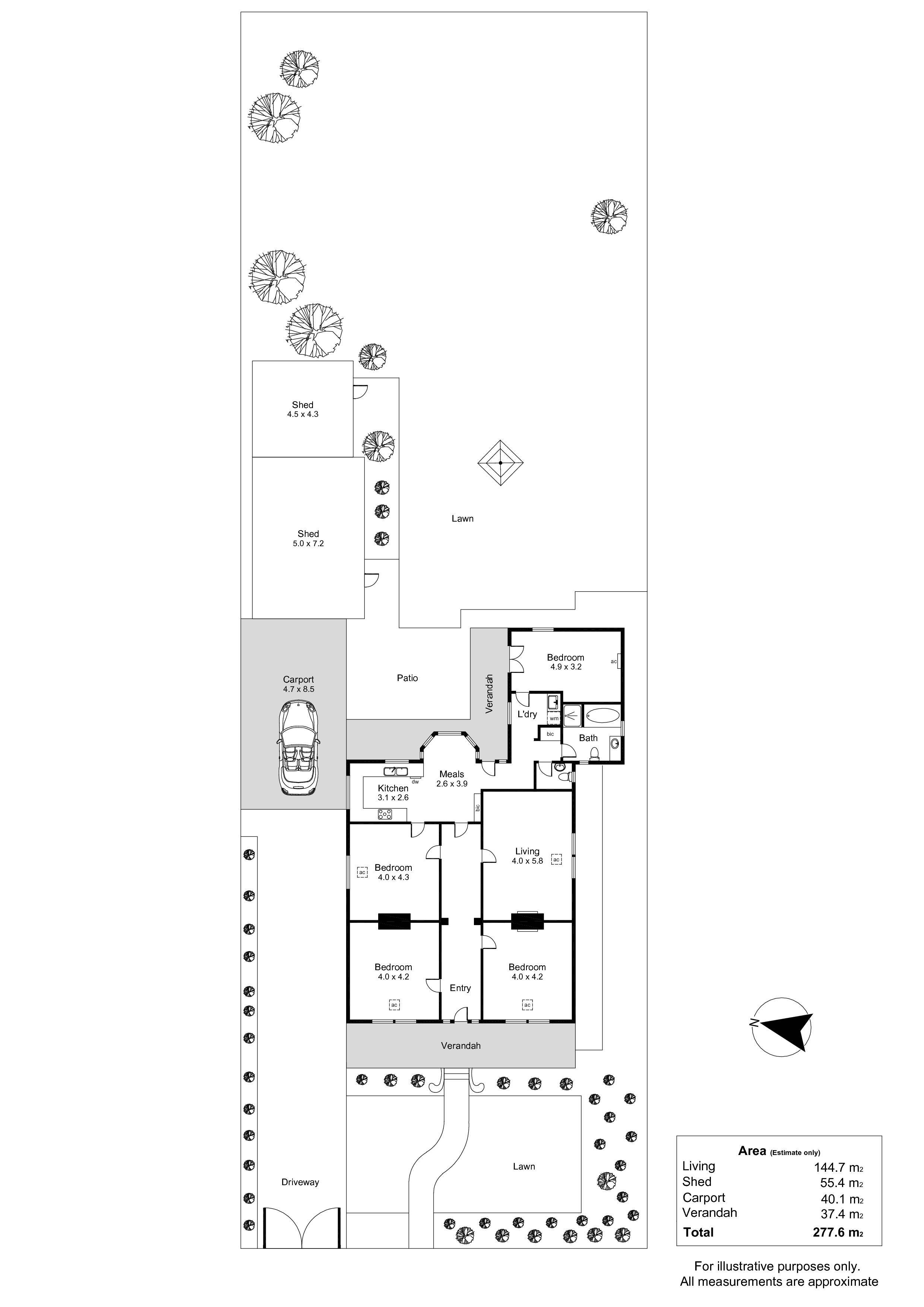
Set on a sprawling 1,136sqm allotment, this grand symmetrical villa makes an immediate impression with its classic street presence and beautifully balanced design. From the moment you arrive, the wide driveway, expansive carport, and large garage with additional shed space provide practicality for modern living, while hinting at the scale that awaits beyond.

Step inside and you're greeted by a traditional yet highly functional floorplan, enriched with charming original features that speak to the home's heritage. Elegant archways frame the central hallway, creating a sense of grandeur and flow, while ornate fireplaces with detailed mantelpieces and decorative tiling provide beautiful focal points throughout-adding warmth, texture, and undeniable character.

At the front of the home, three generously sized bedrooms offer comfortable accommodation, all branching from the central hallway that enhances the home's symmetry and classic appeal.

Moving through, the home opens into a spacious lounge room, perfect for relaxing or entertaining, before leading into the kitchen and dining area. The kitchen is centrally positioned, connecting seamlessly to the verandah and outdoor entertaining zones, making everyday living and hosting effortless.

Toward the rear, a versatile fourth bedroom or guest retreat is thoughtfully positioned alongside a bathroom, laundry, and separate WC - ideal for extended family, guests, or potential dual-living flexibility.

Outdoors is where this property truly shines. A large verandah creates an entertaining space, while the expansive yard offers endless possibilities - whether it's for children to play, future extensions, or simply enjoying the sense of space so close to the city.

And the location? Simply unmatched. Nestled between three major roadways, you're within easy walking distance to a free tram, Welland Plaza, local convenience stores, and the charming cafés of Queen Street. Plus, the vibrant dining and nightlife of North Adelaide are just moments away, delivering the perfect balance of lifestyle and convenience.

Key Features:

- Grand symmetrical villa on a generous 1,136sqm allotment•
- Beautiful original character features including archways, fireplaces, mantelpieces, and decorative tiling
- Four well-proportioned bedrooms, including flexible rear guest retreat
- Spacious central lounge room ideal for family living
- Functional kitchen and dining area with direct outdoor access
- Bathroom, separate WC, and dedicated laundry
- Expansive verandah for year-round entertaining
- Large carport plus garage and additional shed/storage space
- Wide driveway with ample off-street parking
- Traditional layout with excellent flow and natural light
- Prime city-fringe location close to tram, shopping, and cafés
- Minutes to North Adelaide dining, entertainment, and amenities

Specifications

Title: Torrens Title
Year built: c1890
Land size: 1,136sqm (approx)
Site dimensions: 18.29m x 62.13m (approx)
Council: City of Charles Sturt
Council rates: $2,107.60pa (approx)
ESL: $201.65pa (approx)
SA Water & Sewer supply: $248.24pq (approx)

•Approx.

All information provided including, but not limited to, the property's land size, floorplan, floor size, building age and general property description has been obtained from sources deemed reliable. However, the agent and the vendor cannot guarantee the information is accurate and the agent, and the vendor, does not accept any liability for any errors or oversights. Interested parties should make their own independent enquiries and obtain their own advice regarding the property. Should this property be scheduled for Auction, the Vendor's Statement will be available for perusal by members of the public 3 business days prior to the Auction at the offices of LJ Hooker Mile End at 206a Henley Beach Road, Torrensville and for 30 minutes prior to the Auction at the place which the Auction will be conducted. RLA 242629

Features

  • Air Conditioning
  • Toilets (1)
  • Close to Schools
  • Close to Shops
  • Close to Transport
  • Window Treatments

Property Brochures

  • RLA 242629
  • Property ID MJXHDM

property map

Property Sidebar

Auction Details

Inspection Details

Property Details

Property Type House

Land 1136m²

Sidebar Navigation

How can we help?

listing banner

Ask a question

Please send me more information on...

listing item

listing item

listing item

listing item