15/39 Lochside Drive, West Lakes SA

Property Media

Property mainbar sidebar

Property Mainbar

15/39 Lochside Drive, West Lakes

Sold For $825,000

3
1
1

Property Mobile Panel

For Sale

Property Details

Property Type Townhouse

Uninterrupted Lakefront Views - Opposite the Golf Course

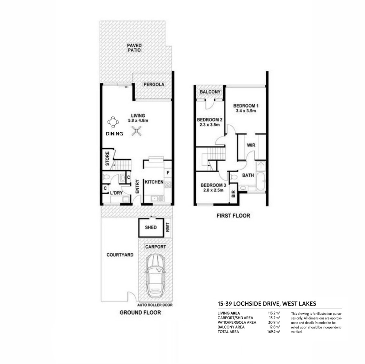
Set in a highly sought-after position with breathtaking views across the shimmering lake and the golf course directly opposite, this beautifully presented two-storey townhouse offers the perfect balance of lifestyle, convenience, and low-maintenance living.

Downstairs, the light-filled open-plan lounge and dining area feature floor-to-ceiling windows that capture uninterrupted water views, creating an inviting space to relax or entertain. The updated kitchen offers timber benchtops, a gas cooktop, dishwasher, and plenty of storage, while sliding doors open to a paved outdoor entertaining area right by the lake's edge. A guest powder room and laundry complete the lower level.

Upstairs, there are three bedrooms, including the main retreat with direct lake views, a walk-in robe, and access to the spacious two-way bathroom with spa bath and separate shower. Bedroom two enjoys its own private balcony overlooking the water, while bedroom three is complete with built-in robes -perfect for guests, family, or a home office.

Property Features:
- Uninterrupted lake views from multiple living areas
- Updated kitchen with timber benchtops, gas cooktop & dishwasher
- Open-plan lounge & dining with floor-to-ceiling glass windows
- Sliding doors to paved waterfront entertaining area with pergola
- Main bedroom with WIR & two-way bathroom with spa bath
- Bedroom two with private balcony overlooking the lake
- Bedroom three with built-in robes
- Guest powder room & laundry downstairs
- Ducted evaporative cooling upstairs
- Enclosed carport with auto roller door & second courtyard
- Garden shed for extra storage

Perfectly located in one of Adelaide's most desirable coastal communities, this home is moments from Westfield West Lakes, the West Lakes Golf Club, and Tennyson Beach. Enjoy lakeside walking trails, nearby reserves, and a variety of local cafés and dining options - all within easy reach.

Offering a rare combination of lifestyle, comfort, and convenience, this is your opportunity to secure an enviable lakeside address.

For more information, please contact Rosemary Auricchio on 0418 656 386 or Nick Carpinelli on 0403 347 849

Disclaimer:
Any prospective purchaser should not rely solely on 3rd party information providers to confirm the details of this property or land and are advised to enquire directly with the agent in order to review the certificate of title and local government details provided with the completed Form 1 vendor statement. All land sizes quoted are an approximation only and at the purchaser's discretion to confirm. All information contained herein is gathered from sources we consider to be reliable. However, we cannot guarantee or give any warranty about the information provided. Interested parties must solely rely on their own enquiries. RLA 175322

Ideal For

  • Investors
  • Downsizing
  • Couples

Features

  • Air Conditioning
  • Evaporative Cooling
  • Balcony
  • Built-In-Robes
  • Dishwasher
  • Secure Parking
  • Liveability Features
  • Liveability

Property Brochures

  • RLA 175322
  • Property ID 4ZT0FE8

property map

Property Sidebar

For Sale

Property Details

Property Type Townhouse

Sidebar Navigation

How can we help?

listing banner

Ask a question

Please send me more information on...

listing item

listing item

listing item

listing item