57 Brebner Drive, West Lakes SA

Property Media

Property mainbar sidebar

Property Mainbar

57 Brebner Drive, West Lakes

Contact Agent

2
1
1

Property Mobile Panel

For Sale

Inspection Details

Property Details

Property Type Townhouse

Low Maintenance Opportunity in Prime Location

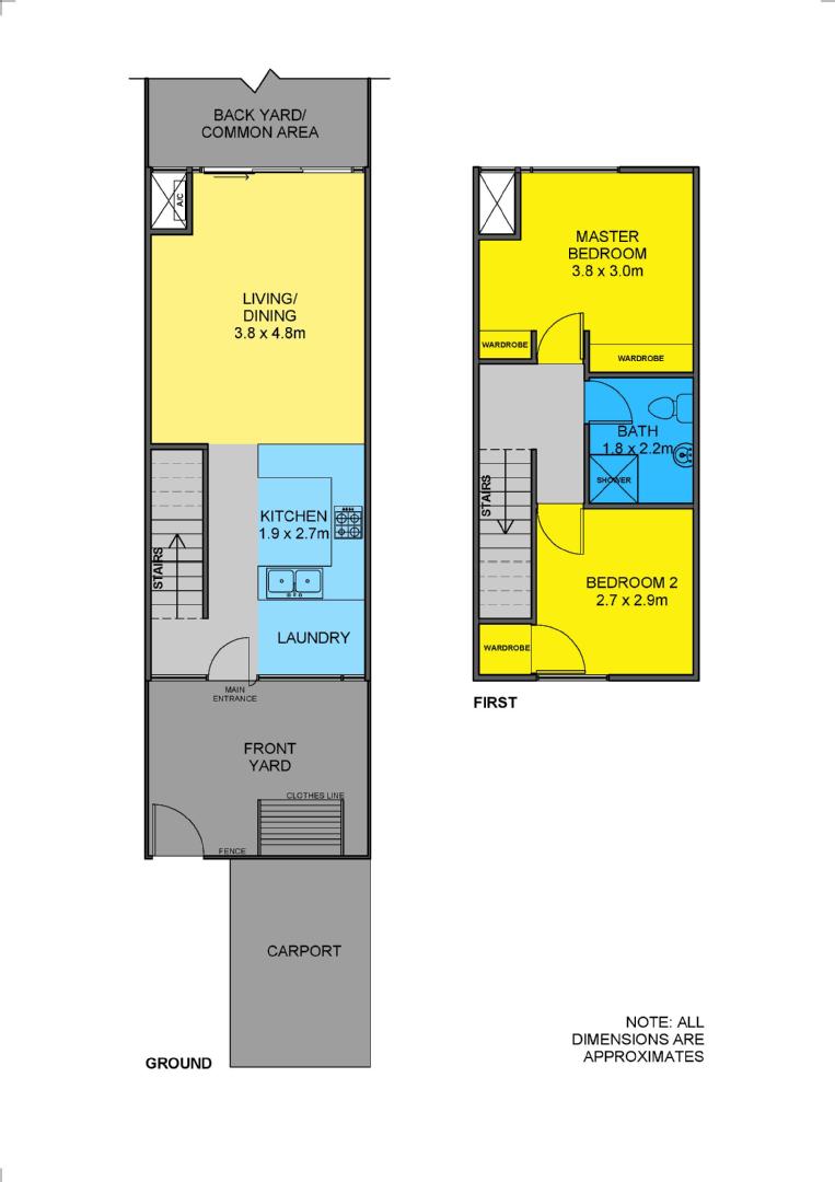
Set within the quiet and well maintained Shoreline Court community, this charming townhouse presents an excellent opportunity for first homebuyers, young couples, or investors looking to secure a foothold in the ever popular suburb of West Lakes. Offering a comfortable and low maintenance lifestyle, this home is ideal for those seeking convenience, simplicity, and long term value.

The updated kitchen with timber floors provides a modern touch, while the open-plan living, dining, and kitchen areas flow seamlessly to a secure courtyard-perfect for relaxing or entertaining. The home also boasts a built-in dining table for added functionality and a floor-to-ceiling updated bathroom, enhancing both the aesthetic and comfort of the space. With pleasant outlooks over the shared gardens, the setting feels peaceful and welcoming, making it easy to feel at home from the moment you arrive.

Property Features:
-Two spacious bedrooms, both with built in wardrobes
- Updated kitchen with timber floors, ample bench space, and modern appliances
- Open plan kitchen, living, and dining area
- Secure private courtyard
- Lovely outlook across the shared garden areas
- Updated floor-to-ceiling bathroom
- Split system air conditioning downstairs
- Positioned within the quiet Shoreline Court community
- Low maintenance and easy care living
- Air conditioning
- Covered Carport

The location offers outstanding lifestyle appeal, with Westfield West Lakes Shopping Centre, cafes, and restaurants just a short walk away, along with the lake and Tennyson Beach close by for coastal enjoyment. A range of local schools, including West Lakes Shore School, Westport Primary School and Seaton High School, are all within easy reach. Surrounded by numerous parks and reserves, including Delfin Island Reserve, Bartley Reserve, and nearby lakeside walking paths, the area provides plenty of green space for outdoor enjoyment. Public transport options are also close by, offering convenient connections to the Adelaide CBD and surrounding suburbs.

For further information please contact Rosemary Auricchio on 0418 656 386 or Levi Proude on 0434 277 315.

Disclaimer:
Any prospective purchaser should not rely solely on 3rd party information providers to confirm the details of this property or land and are advised to enquire directly with the agent in order to review the certificate of title and local government details provided with the completed Form 1 vendor statement. All land sizes quoted are an approximation only and at the purchaser's discretion to confirm. All information contained herein is gathered from sources we consider to be reliable. However, we cannot guarantee or give any warranty about the information provided. Interested parties must solely rely on their own enquiries. RLA 175322

Ideal For

  • First Home Buyers
  • Investors
  • Downsizing
  • Students
  • Couples

Features

  • Air Conditioning
  • Built-In-Robes
  • Toilets (1)
  • Liveability Features
  • Liveability

Property Brochures

  • RLA 175322
  • Property ID 5087FE8

property map

Property Sidebar

For Sale

Inspection Details

Property Details

Property Type Townhouse

Sidebar Navigation

How can we help?

listing banner

Ask a question

Please send me more information on...

listing item

listing item

listing item

listing item